Снять склад, г. Минск, ул. Красная, 7/2
18 р./м²
- г. Минскул. Красная, 7/2
- Площадь Победы
- На карте
Тип
Площадь
Этаж
Описание
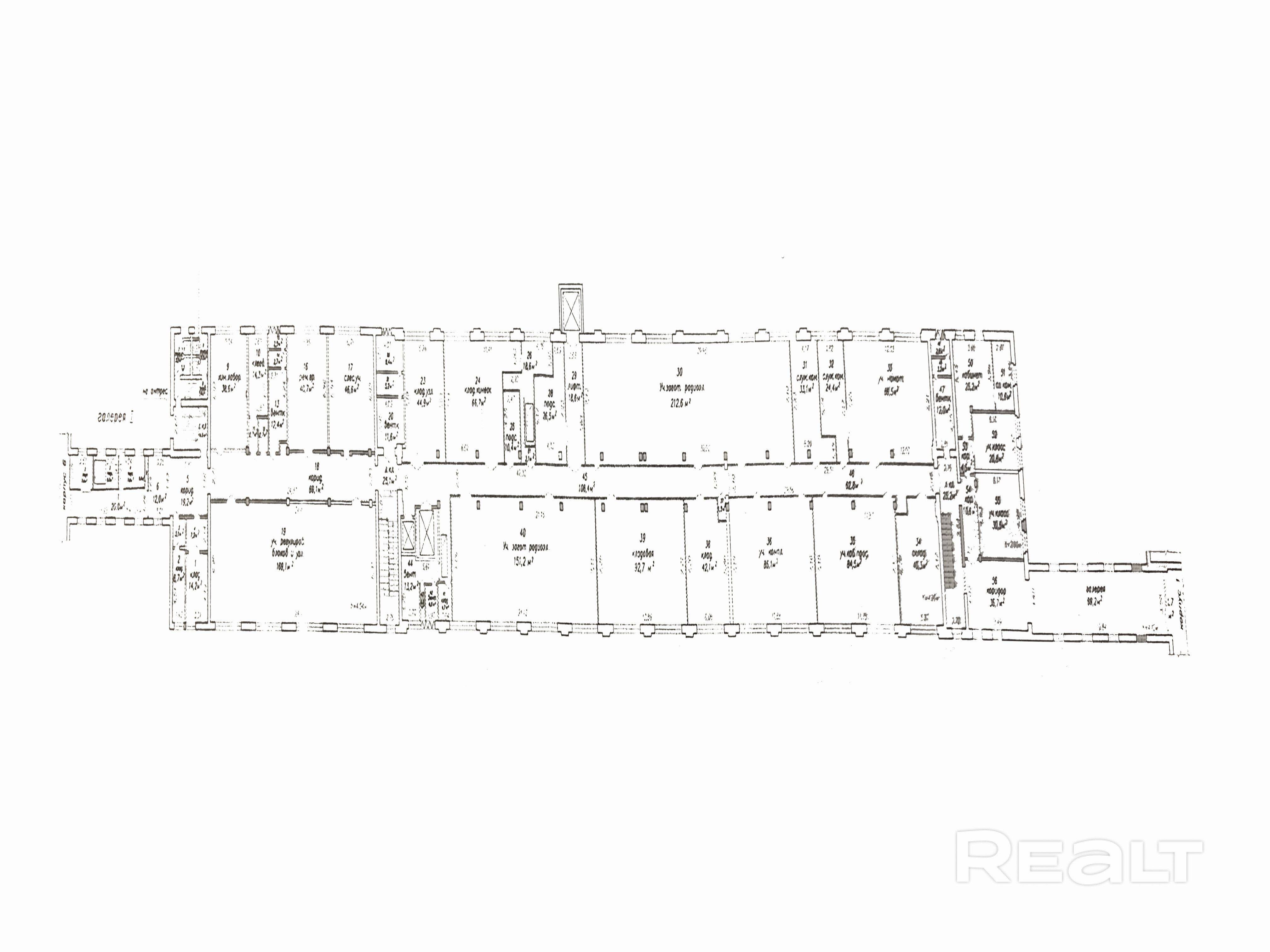
Производственные помещения в аренду в центре Минска. по адресу ул. Красная 7 к. 2
Куйбышева-Красная-Машерова-Киселева.
Идеально под производство.
2 корпус, 2 и 3 этажи.
Второй этаж площадью 360 м2, третий - 1300 м2, можно арендовать как по отдельности, так и вместе.
Стены внутри помещения в основном - не несущие конструкции, есть возможность перепланировки под собственные запросы.
Помещения теплые.
Высота потолков: 5,5 метров.
Допустимая нагрузка на пол - 2 тонны, мощность от 100 кВт.
Фиксированные эксплуатационные платежи - 4,5 рублей за м2.
Заведена вода, канализация, необходимо разводить электричество.
Установлен и введен в эксплуатацию пассажирский лифт, грузовой лифт(2,4х1,9х2,1), грузопоъемность 2 тонны
Свободный вход для посетителей с 06.00 до 23.00, парковка на территории комплекса 2 часа бесплатная.
Стоимость вложений в помещение компенсируется по смете в счет арендной платы.
❌не сдается под СТО, под металлообработку, обработка камня.
Result Estate — ваш надёжный партнёр на рынке недвижимости.
20 лет опыта наших агентов по недвижимости — это ваш ключ к идеальной сделке: глубокое знание рынка, эксклюзивные предложения, юридическая безопасность и индивидуальный подход. Мы экономим ваше время, деньги и нервы, помогая купить, продать недвижимость быстро, выгодно и с уверенностью в результате!
Все актуальные предложения в одном месте — смотрите на нашем сайте.
Опишите свои пожелания — и мы оперативно подберем для вас лучшие варианты!
ООО «Результативная недвижимость», лицензия выдана Минюстом 26.09.2023 № 02240470, УНП 193703497
Связываясь с нами по данному объекту, Вы даете свое согласие на сбор и обработку персональных данных автоматически.
Параметры объекта
- Тип объекта
Склад
- Площадь общая
360 - 1300 м²
- Этаж / этажность
2 / 4
- Год постройки
1955
- Раздельных помещений
2
- Материал стен
Кирпичный
- Отопление
Есть
- Электроснабжение
Есть
- Естественное освещение
Есть
- Вода
Есть
- Принадлежность объекта
Частная
- НДС
НДС включен
- Номер договора
58/3а от 12.05.2025
Примечание
Местоположение
- Область
- Населенный пункт
- Улица
- Номер дома
7/2
- Район города
- Координаты
53.9133, 27.5699
