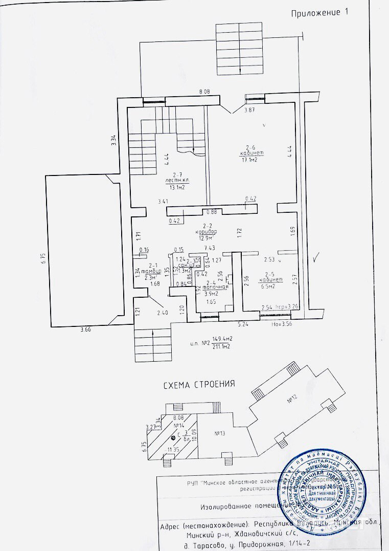
Офисное здание 100% готовности в д.Тарасово, ул.Придорожная, 1
646 467 р.
Тип
Площадь
Этаж
Описание
Продаётся офисное здание 100% готовности в д.Тарасово, ул.Придорожная, 1/14; Гродненское направление, 1 км от МКАД (5 минут до станции метро "Каменная Горка"), приглашаем на просмотр!
-Энергоэффективное здание 2011 года; продуманная архитектурная планировка, все строительные и отделочные работы выполнялись по проектным чертежам, в строгом соответствии с технологическими процессами и знаниями новейших тенденций современного строительства; высококачественные материалы строительства и отделки; долговечный и надёжный конструктив:
-Фундамент - монолитный железобетонный с утеплением и гидроизоляцией;
-Стены блочные с утеплением каменной ватой и декоративной штукатуркой;
-Силиконовая заколерованная декоративная штукатурка, атмосферостойкая, водоотталкивающая, самомоющаяся, обеспечивает качественную защиту фасада от атмосферных воздействий, плесени и грибка;
-Кровля - черепица с утеплением;
-Качественные энергосберегающие стеклопакеты;
-Отопление газовое, насосные группы, радиаторы, водяные тёплые полы;
-Все центральные коммуникации: свет 380, газ, центральный водопровод, центральная канализация, оптоволокно (телефон-интернет), видеонаблюдение, видеодомофон, кондиционирование, асфальт;
-Парковка два авто;
- «д.Тарасово» с подъездными путями по асфальтированным дорогам, расположен в экологически чистой местности, окружен лесными массивами.
-Транспортное сообщение с Минском: городской маршрутный автобус; маршрутное такси.
-Развитая инфраструктура на доступном расстоянии: супермаркеты, магазины, школа и детский сад, почта, банк, медучреждения и аптеки. Чистейшие сосновые леса, грибы, ягоды. Одно из лучших мест в пригороде Минска, не упустите свой шанс приобрести великолепный объект недвижимости!
Поможем профессионально быстро и выгодно продать Вашу недвижимость в связи с покупкой вышеуказанного объекта недвижимости, размещение рекламных объявлений на лучших специализированных интернет площадках Республики Беларуси, России, стран ближнего и дальнего зарубежья-70 стран мира, Профессиональная фото-видео-аэросъемка, рекламные ролики в социальных сетях, а также использование самых современных и уникальных технологий для успешной продажи Вашего объекта недвижимости. Ответим на Ваши вопросы, предоставим всю необходимую информацию. Напишите Нам в удобный для Вас мессенджер: Viber | Telegram | WhatsApp.
Риэлтер Александр Владимирович.
Параметры объекта
- Тип объекта
Готовый бизнес
- Площадь участка
3 сотки
- Площадь общая
227 м²
- Этаж / этажность
1 / 2
- Год постройки
2011
- Материал стен
Блочный
- Высота потолков
3 м
- Ремонт
Хороший
- Отопление
Есть
- Электроснабжение
Есть
- Естественное освещение
Есть
- Вода
Горячая
- Санузел
Есть
- Оборудование
Есть
- Количество телефонов
3 телефона
- Парковка
Есть
- Принадлежность объекта
Частная
- НДС
НДС включен
- Юридический адрес
Да
- Номер договора
137/3 от 09.10.2025
Оснащение
Кондиционер
Видеонаблюдение
Компьютерная сеть
Интернет
Отдельный вход
Мебель
Готовый бизнес
Александр Чукович
Риэлтер
Примечание
Местоположение
- Область
- Район
- Населенный пункт
- Улица
- Номер дома
1/14
- Сельсовет
Ждановичский с/с
- Направление
Раковское, 1.9 км от МКАД
- Координаты
53.9181, 27.3815


