Дом мечты в Логойске: стиль, комфорт и природа в одном месте
778 663 р.
Тип
Участок
Общая
Жилая
Описание
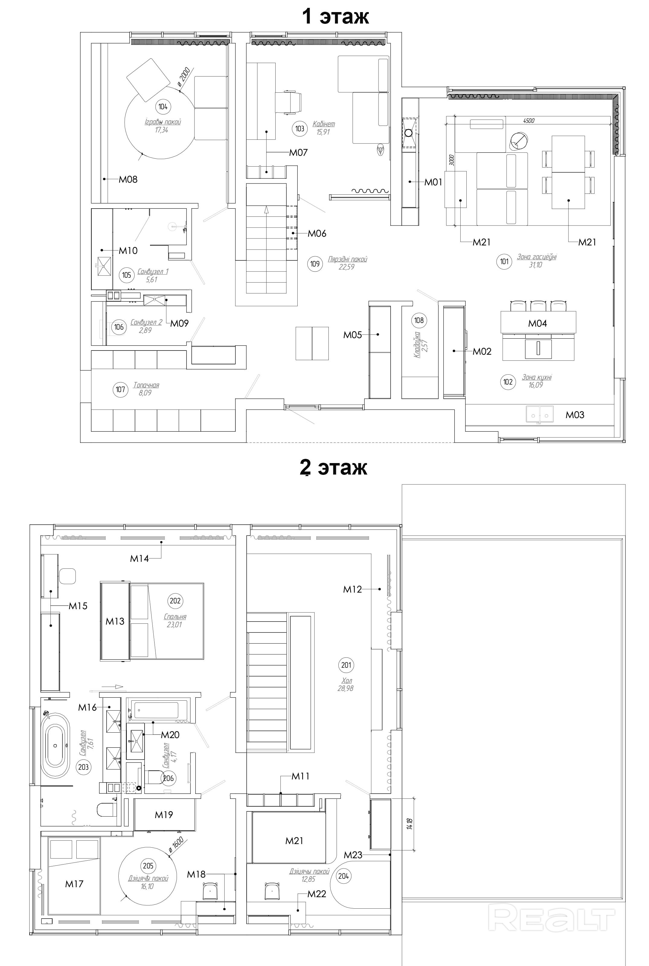
Продается стильный и качественный дом площадью 239 м2 всего 30 км от Минска. Построен в 2025 году из премиальных материалов. Дом находится на стадии внутренней отделки, что дает возможность создать интерьер, полностью отражающий ваши предпочтения.
Основные характеристики:
• Этажность: 2 этажа, высота потолков в черновой отделке – 3,45 м.
• Площадь общая: 239 м2 .
• Терраса: 49.5 м2 с ограждением из закаленного стекла (без чистового покрытия).
Коммуникации и технологии:
• Полный комплекс подключенных коммуникаций:
• Водоснабжение, центральная канализация, трехфазное электроснабжение, газ.
• Высокоскоростной интернет (оптоволокно).
• Умный дом: система KNX (без оборудования) + аудиосистема и проектор.
• Система видеонаблюдения Hikvision с 8К-камерой, датчиками движения и сигнализацией.
• Разведенные инженерные сети: электрика, умный дом.
Строительные особенности:
• Фундамент: свайно-ростверковый на прочных грунтах (бетон М400).
• Крыша: мембрана UltraPly TPO Firestone с автоподогревом водосливов (срок службы более 50 лет, гарантия на работы 10 лет).
• Панорамное остекление площадью 124 м2 из алюминиевого профиля Alutech с солнцезащитным стеклом STOPRAY VISION 60T и немецкой фурнитурой Schüco.
• Портальные раздвижные двери для выхода в сад от производителя Alutech.
Фасад:
• Утепление: 150 мм, материалы PAROC LINIO 18 и PAROC WAS 35TB.
Отделка:
• Первый этаж – немецкий клинкер Stroher Glanzstucke.
• Второй этаж – вентфасад из крупноформатного керамогранита (Испания) и сибирская лиственница премиального качества (без сучков).
Участок:
• Площадь: 9 соток.
• Расположение: крайний участок по улице с двух сторон окружен лесом, что обеспечивает уединение и тишину.
• Разработан проект ландшафтного дизайна, учитывающий рельефность участка.
Идеальное расположение:
• Город Логойск: живописная холмистая местность, известная как белорусская Швейцария.
Рядом:
• ГК «Логойск» (5 км).
• Спортивно-оздоровительная база «Заячья поляна» (4 км).
• ГК «Силичи» (10 км).
• Река Гайна (600 м).
• Транспортная доступность: автобусные маршруты в шаговой доступности, 30 км от МКАД по скоростной трассе М3.
Преимущества покупки:
• Разработан индивидуальный дизайн-проект интерьера.
• Разработан индивидуальный дизайн-проект ландшафта.
• Разработан индивидуальный архитектурный проект бани с зоной барбекю и получено разрешение на строительство.
• Дом введен в эксплуатацию.
• Готовая проектная документация на системы: вентиляция, отопление, водоснабжение, канализация, умный дом и видеонаблюдение.
Звоните и приезжайте на просмотр, чтобы лично оценить все преимущества этого современного дома!
Параметры объекта
- Тип объекта
Коттедж
- Площадь участка
9 соток
- Площадь общая
239 м²
- Площадь жилая
117.7 м²
- Площадь кухни
46.8 м²
- Уровней в доме
2
- Год постройки
2025
- Процент готовности
70
- Новостройка
Да
- Материал стен
Кирпичный
- Материал крыши
Рубероид
- Ремонт
Не достроен
- Отопление
На газу
- Газ
Есть
- Канализация
Центральная
- Электроснабжение
Есть
- Вода
Центральный водопровод
- Камин
Да
- Статус земли
Частная собственность
- Условия продажи
Чистая продажа
Инфраструктура
Водоем
Рядом лес
Продавец
Иван
Контактное лицо
Примечание
Местоположение
- Область
- Район
- Населенный пункт
- Улица
- Номер дома
70
- Направление
Логойское, 35 км от МКАД
- Координаты
54.216216077, 27.834823331


