Просторный дом рядом с Минском!
511 452 р.
Тип
Участок
Общая
Жилая
Описание
Прекрасное расположение (д. Боровляны, п.Опытный): вся необходимая инфраструктура (супермаркеты, аптеки, прекрасное транспортное сообщение) – все это в 10 минутах от города!
Престижный поселок, где рядом с Вами только жилые дома и статусные соседи.
Идеальное место для комфортного проживания вашей дружной семьи – вся нужная инфраструктура в вашем распоряжении, с другой стороны Вы всегда будете дышать чистым воздухом соснового леса.
Дом полностью готов к проживанию! Ждем Вас на просмотр!
Возможен обмен на квартиру.
Лицензия: 02240/446 от 11.07.2022, Министерство юстиции РБ
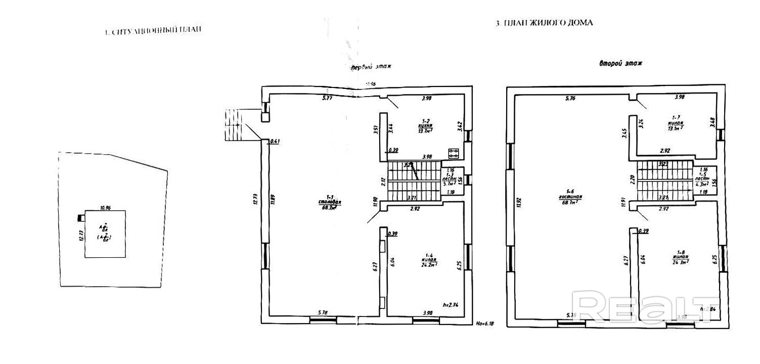
Параметры объекта
- Тип объекта
Дом
- Площадь участка
10 соток
- Площадь общая
338.1 м²
- Площадь жилая
199 м²
- Площадь кухни
13.7 м²
- Уровней в доме
2
- Год постройки
2013
- Процент готовности
100
- Материал стен
Силикатные блоки
- Материал крыши
Металл
- Ремонт
Евроотделка
- Отопление
На газу
- Газ
Есть
- Канализация
Местная
- Электроснабжение
Есть
- Вода
Скважина
- Статус земли
Частная собственность
- Условия продажи
Чистая продажа
- Номер договора
660/1 от 22.10.2024
Примечание
Местоположение
- Область
- Район
- Населенный пункт
- Улица
- Сельсовет
Боровлянский с/с
- Направление
Логойское, 8 км от МКАД
- Координаты
53.994864335, 27.695859073
