Продаётся дом в Колодищах по ул. Летняя (2022 гп)
817 394 р.
Тип
Участок
Общая
Жилая
Описание
Продаётся готовый современный дом в аг Колодищи (полигон) в 10 минутах от ст.м. `Уручье`.
Дом построен по индивидуальному проекту, введен в эксплуатацию в 2022 г.
Наружные стены из керамических блоков (керамика обеспечивает комфортный баланс температуры и влаги внутри дома и препятствуют появлению плесени и грибка), стены утеплены снаружи и оштукатурены внутри, кровля из металлочерепицы.
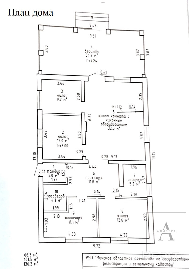
Общая площадь СНБ дома 136,2 кв.м., общая площадь жилых помещений 101,5 кв.м., жилая площадь 66,3 кв.м.
Имеются все коммуникации: скважина, местная канализация, электроснабжение.
Продуманная архитектурная планировка!
В доме: 3 жилые комнаты, жилая с кухонным оборудованием, прихожая, совмещенный санузел, помещение топочной, гардеробная, веранда (34,7 кв.м.) Высота помещений в доме 3 м.
Отопление электрическое на дистанционном управлении, теплые полы, установлена система очистки воды.
На участке построена капитальная хозпостройка 90 кв.м. (высотой помещения 3 м.)
Земельный участок 15 соток в частной собственности.
Развитая инфраструктура в застройке: остановка городского автобуса в пешей доступности, городской автобус, маршрутное такси, магазин "Евроопт", «Санта», новая школа на 720 учащихся с бассейном, детский сад. Несколько футбольных полей, волейбольная и баскетбольная площадки. Три зоны отдыха для мам и деток (полигон-арена, детские площадки и школьный стадион). Зимой заливается ледяной каток, а также несколько спусков для саней и тюбингов. Есть местные пекарни, кондитерские, продукты на заказ, пиццерия и многое другое. Услуги курьеров по Минским тарифам.
Чистая продажа! Приглашаем на просмотр! Торг возможен!
За подробной информацией обращайтесь к нашим специалистам по единому номеру, указанному в контактной информации. Возможна покупка с привлечением кредитных средств от банков-партнёров. Окажем помощь при продаже вашей недвижимости для приобретения данного объекта.
Параметры объекта
- Тип объекта
Коттедж
- Площадь участка
15 соток
- Площадь общая
136.2 м²
- Площадь жилая
66.3 м²
- Год постройки
2022
- Материал стен
Силикатные блоки
- Отопление
Электрическое
- Газ
Нет
- Канализация
Местная
- Электроснабжение
Есть
- Вода
Скважина
- Статус земли
Частная собственность
- Возможен торг
Да
- Условия продажи
Чистая продажа
- Номер договора
100/1 от 29.04.2025
Примечание
Местоположение
- Область
- Район
- Населенный пункт
- Улица
- Сельсовет
Колодищанский с/с
- Направление
Московское, 8.2 км от МКАД
- Координаты
53.908649, 27.767258
