Продаётся уютный двухуровневый дом.
215 760 р.
Тип
Участок
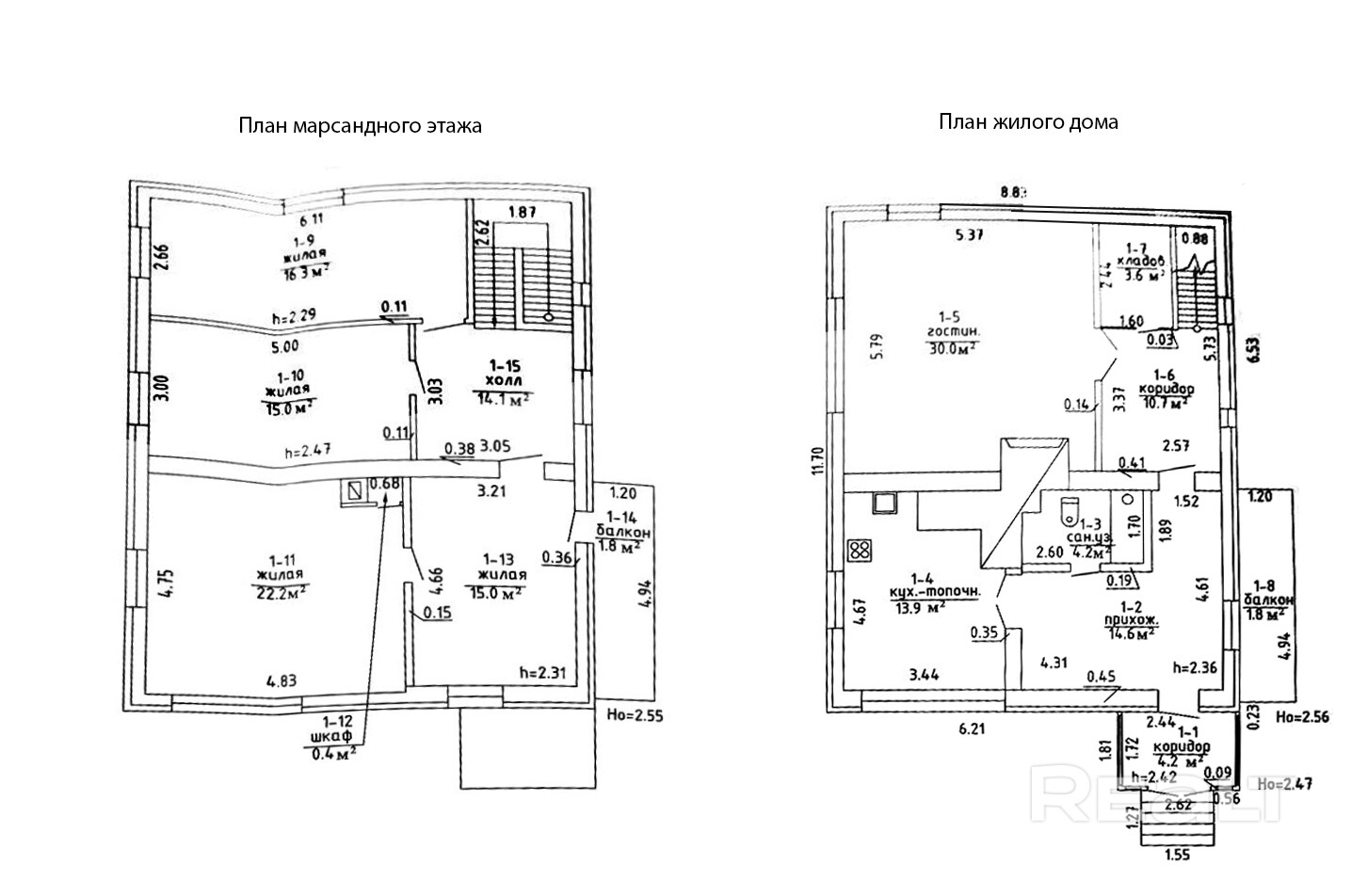
Общая
Жилая
Описание
Продаётся уютный 2-х уровневый дом в экологически чистом месте.
Канализация местная, отопление, газ – баллоны. Дом пригоден для круглогодичного проживания, укомплектован мебелью. На территории находятся баня, беседка, сарай.
Деревня Венделево находится в 25 км от МКАД в Молодечненском направлении, относится к Петришковскому сельскому совету. Деревня небольшая, здесь насчитывается около 30 домов, в основном деревянные, сельского типа. Основные объекты социальной инфраструктуры находятся в соседних Векшицах и Петришках. В деревню ходит пригородный автобус, а также можно добраться электричкой – до станции «Анусино».
Вендеево обладает природными достопримечательностями – именно здесь берет начало река Свислочь, в деревне она протекает в виде ручья. Кроме того, окрестности Венделево – одна из трех наивысших точек Беларуси.
Возможен обмен на однокомнатную квартиру в Минске (район "Зелёный луг").
Лицензия: 02240/446 МЮ РБ, 11.07.2022
Параметры объекта
- Тип объекта
Дом
- Площадь участка
25 соток
- Площадь общая
248.9 м²
- Площадь жилая
98.9 м²
- Площадь кухни
13.9 м²
- Уровней в доме
2
- Год постройки
2008
- Процент готовности
100
- Материал стен
Силикатные блоки
- Материал крыши
Металл
- Отопление
Печное
- Газ
Нет
- Канализация
Местная
- Электроснабжение
Есть
- Вода
Скважина
- Баня
Есть
- Статус земли
Частная собственность
- Условия продажи
Чистая продажа
- Номер договора
418/1 от 23.06.2025
Инфраструктура
Беседка
Рядом лес
Фаттория
Контактное лицо
Примечание
Местоположение
- Область
- Район
- Населенный пункт
- Сельсовет
Петришковский с/с
- Направление
Молодечненское, 35 км от МКАД
- Координаты
54.051782426, 27.18263986
