Продается уютный дом в Первомайском районе Минска!
704 368 р.
- г. Минскул. Кутузова, 13
- Московская
- На карте
Тип
Участок
Общая
Жилая
Описание
Продается уютный дом в Первомайском районе Минска!
Идеальное сочетание тишины и удобства — до станции метро «Московская» всего несколько минут пешком, рядом остановка общественного транспорта, парк «Севастопольский» с лесополосой и водоемами. Район славится своей экологией и развитой инфраструктурой: школы, поликлиника, магазины, кафе, Дом кино — всё в шаговой доступности.
Здесь — чистый воздух, развитая инфраструктура и комфорт городской жизни.
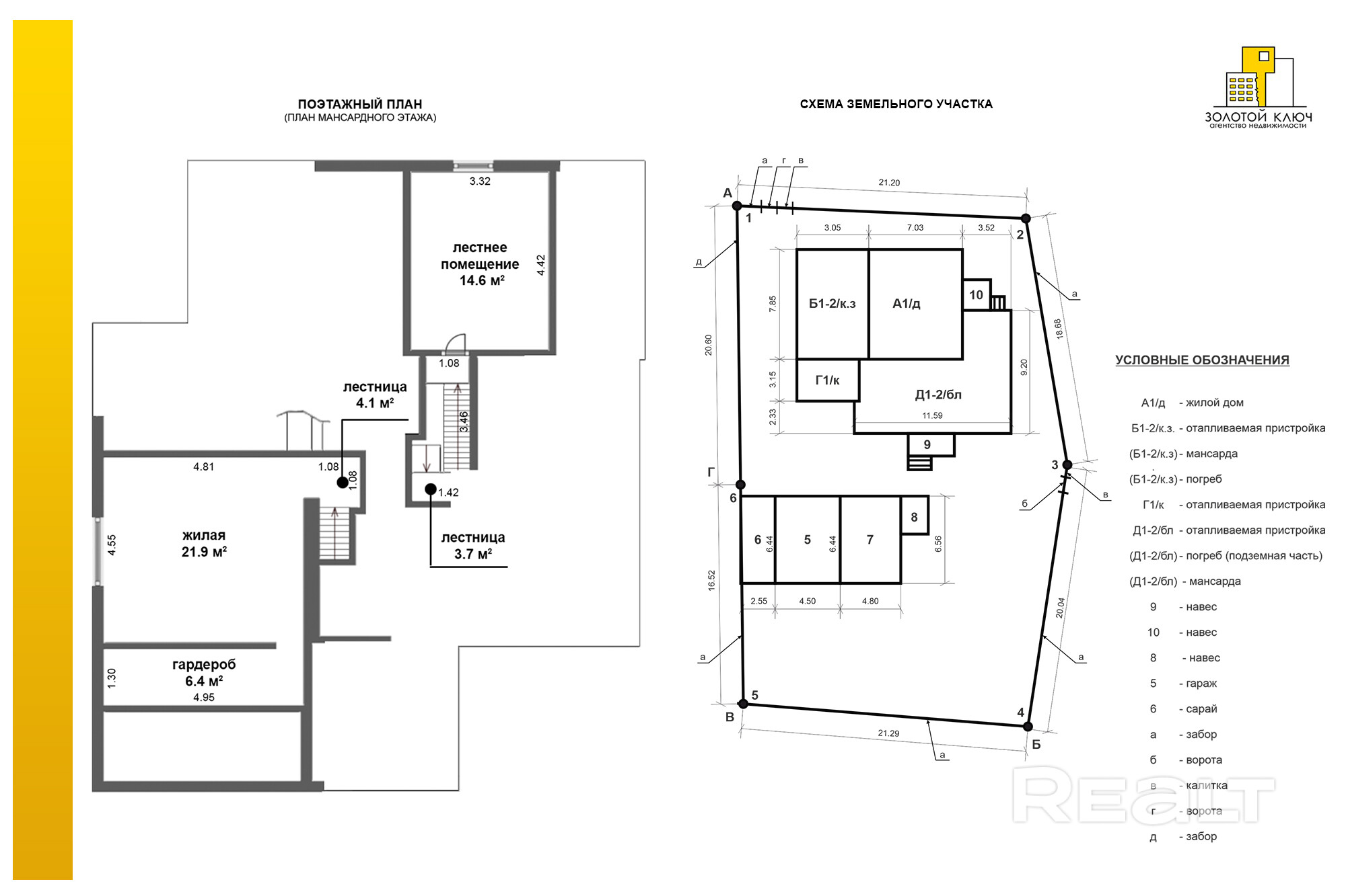
Дом площадью 191,3 м2 (жилая — 90 м2) построен из дерева и блоков, утеплен минватой и обшит сайдингом. Крыша шиферная, забор комбинированный. Просторный участок 8,55 сотки — угловой, с двумя удобными заездами, гаражом, гостевым домом и хозяйственными постройками.
Внутри — два санузла, современная отделка, ламинированные полы, окна ПВХ, встроенные кухни с техникой, камин, газовый котел Junkers и центральные коммуникации (вода, газ, электричество 220/380 В, канализация). Интернет и телефон подключены.
Инфраструктура района:
-поликлиника № 19
-школы № 63, 115
-Виталюр, продуктовые магазины, Кафе
-Дом Кино
-ЖРЭО , Зеленстрой
Экологически чистое место, артезианские источники воды. Вся инфраструктура в шаговой доступности.
Дом, в который легко влюбиться с первого взгляда! Чистая продажа.
Параметры объекта
- Тип объекта
Дом
- Площадь участка
8.55 соток
- Площадь общая
191.3 м²
- Площадь жилая
57.1 м²
- Год постройки
2013
- Процент готовности
100
- Материал стен
Бревенчатый
- Материал крыши
Шифер
- Отопление
На газу
- Газ
Есть
- Канализация
Центральная
- Электроснабжение
Есть
- Вода
Центральный водопровод
- Гараж
Есть
- Статус земли
Пожизненно наследуемое владение
- Условия продажи
Чистая продажа
- Номер договора
88/1 от 11.08.2025
Инфраструктура
Хозпостройки
Агентство "Золотой ключ"
Контактное лицо
Примечание
Местоположение
- Область
- Населенный пункт
- Улица
- Номер дома
13
- Район города
- Микрорайон
- Координаты
53.9339, 27.6245
