Уютный бревенчатый дом в живописном уголке! д. Соколье Угол
332 364 р.
Тип
Участок
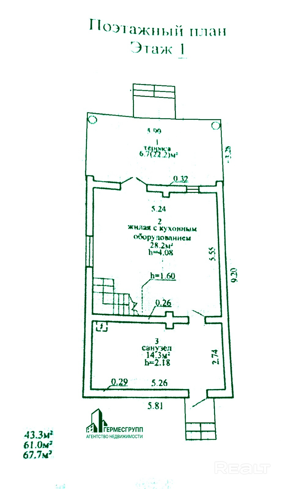
Общая
Жилая
Описание
Уютный бревенчатый дом в живописном уголке!
Мечтаете о загородной жизни в гармонии с природой? Этот двухэтажный дом из бревна – ваш идеальный выбор!
Расположенный в тихой деревне Соколье Угол (Мядельское направление), он окружен великолепным лесом и предлагает 15 соток земли для воплощения ваших самых смелых идей.
Ваши преимущества:
— Надежность и комфорт: Металлочерепичная крыша, отопление от электрокотла, автономный водопровод и канализация – здесь есть все для круглогодичного проживания.
— Простор и удобство: Большая терраса для теплых вечеров с семьей, все удобства в доме, а также есть летний душ на участке.
— Полная готовность к жизни: В доме есть все необходимое для комфортного проживания.
— Идеальное расположение: Уединенное место в окружении леса, где вы сможете отдохнуть от городской суеты.
Не упустите свой шанс стать владельцем этого прекрасного дома! Звоните прямо сейчас!
Параметры объекта
- Тип объекта
Дом
- Площадь участка
15 соток
- Площадь общая
76 м²
- Площадь жилая
67.7 м²
- Уровней в доме
2
- Год постройки
2024
- Материал стен
Бревенчатый
- Материал крыши
Металл
- Отопление
Электрическое
- Газ
Баллон
- Канализация
Местная
- Электроснабжение
Есть
- Вода
Скважина
- Статус земли
Частная собственность
- Условия продажи
Чистая продажа
- Номер договора
127/1 от 10.09.2025
Инфраструктура
Сад
Рядом лес
Водоем
Примечание
Местоположение
- Область
- Район
- Населенный пункт
- Сельсовет
Хотенчицкий с/с
- Направление
Мядельское, 53 км от МКАД
- Координаты
54.38352, 27.361318
