Продается таунхаус/квартира в г. Минске
727 696 р.
Тип
Участок
Общая
Жилая
Описание
Устали от шума, суеты и проблем с парковкой, но при этом не хотите переезжать за город? Есть решение!
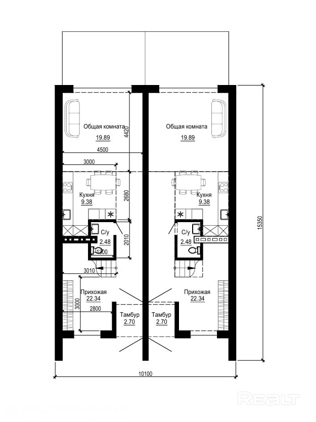
Продается отличная просторная квартира в современном таунхаусе в г. Минске.
- отличная планировка;
- современный дизайн дома;
- полностью подготовлена под чистовую отделку, а значит Вы сможете с минимальными затратами сделать все «под себя»;
- открытая просторная терраса с встроенным местом для бассейна либо купели;
- технический этаж под баню, тренажерный зал или просто площадь для хранения;
- развитая инфраструктура;
- собственная парковка;
- отличная транспортная логистика.
Можно даже завести огород)).
Звоните, ответим на все вопросы.
Смотрите еще больше в нашем Telegram канале @kvadratnyjmetr
УП «Квадратный метр»
УНП: 190003285
Лицензия 02240/29_
от 17.02.2005, Министерство юстиции РБ
Договор от
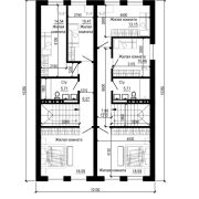
Параметры объекта
- Тип объекта
Коттедж
- Площадь участка
4 сотки
- Площадь общая
185.4 м²
- Площадь жилая
118.5 м²
- Уровней в доме
3
- Год постройки
2021
- Материал стен
Силикатные блоки
- Отопление
Центральное
- Канализация
Центральная
- Вода
Центральный водопровод
- Статус земли
Пожизненно наследуемое владение
- Условия продажи
Чистая продажа
- Номер договора
252/1 от 02.12.2025
Примечание
Местоположение
- Область
- Населенный пункт
- Улица
- Номер дома
8/Б
- Район города
- Микрорайон
- Координаты
53.9351, 27.437
