Срочная продажа жилого дома
239 580 р.
Тип
Участок
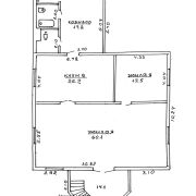
Общая
Жилая
Описание
В продаже жилой дом общей площадью 260 м2 по улице Колхозной в г. Столбцы.
Дом деревянный, с эркерной конструкцией, в два жилых этажа. На фасаде имеются орнаменты на наличниках, подзорах и дверных порталах, что создает эффект объема и контраста, делая деревянную поверхность живой и выразительной, а сам дом- уникальным, настоящим произведением искусства.
Покрытие крыши- металл. На цокольном уровне имеется гараж со смотровой ямой.
В доме 7 комнат.
Интерьер дома наполнен натуральным деревом с элементами инкрустации на стенах, что создает атмосферу благородства и роскоши.
На первом этаже расположены: просторная светлая гостиная с шикарным паркетным полом из дуба и выходом на кухню-столовую, комната для отдыха, санузел и подсобные помещения.
В санузле установлены джакузи, душевая, стиральная машина.
На втором этаже имеется просторный холл, комнаты отдыха и подсобные помещения.
Дом обогревается паровым отоплением с использованием газового котла.
Водоснабжение централизованное, канализация местная.
Дом расположен на участке площадью 9,45 соток.
Имеются парковочные места для нескольких автомобилей. В саду – плодовые деревья и кустарники, зоны отдыха.
Дом расположен в тихом и спокойном районе города, в шаговой доступности - продуктовые магазины, аптека, детский сад, школа, кинотеатр, рынок, река Неман, остановка общественного транспорта.
Отличное транспортное сообщение с Минском: электропоезда с отправлением на железнодорожном вокзале, маршрутки каждые 20 минут с остановкой вблизи станции метро Малиновка.
Лицензия: 02240/446 МЮ РБ, 11.07.2022
Параметры объекта
- Тип объекта
Дом
- Площадь участка
9.5 соток
- Площадь общая
261.6 м²
- Площадь жилая
157.3 м²
- Площадь кухни
26.2 м²
- Уровней в доме
2
- Год постройки
2002
- Процент готовности
100
- Материал стен
Бревенчатый
- Материал крыши
Металл
- Отопление
Паровое
- Газ
Есть
- Канализация
Местная
- Электроснабжение
Есть
- Вода
Центральный водопровод
- Статус земли
Пожизненно наследуемое владение
- Условия продажи
Чистая продажа
- Номер договора
998/1 от 29.12.2025
Фаттория
Контактное лицо
Примечание
Местоположение
- Область
- Район
- Населенный пункт
- Улица
- Направление
Брестское, 62.1 км от МКАД
- Координаты
53.479943, 26.726622
