Скачать приложение Realt
Скачать

Просторный дом для семьи. 12 км от Минска!

678 577 р.

245 000 $
Чистая продажа
Следить за ценой
Дом

Тип

15 сот

Участок

266 м²

Общая

84 м²

Жилая

04.05.2026ID 4023322

Описание

Уютный семейный дом, где каждому найдётся место.    

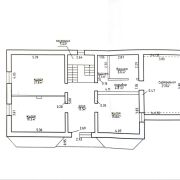
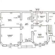
Двухуровневый жилой дом общей площадью 266 м!

Современное планировочное решение: предусмотрены хозяйские и гостевые комнаты, просторная гостиная. Кухня с выходом на террасу. Большая гардеробная 20м2. В доме остаётся вся мебель и бытовая техника. Отдельные хоз. блоки: котельная, подвал на нижнем уровне 33,9м2, гараж 20,2м2.  Отдельно стоящая Хозпостройка с возможностью переоборудования в гостевой домик. Баня введена в эксплуатацию.

Участок ровный, обработан, высажены плодовые деревья и кустарники, теплица. Территориально крайний участок.

 

Отличная локация – 12 км от МКАД, до метро Каменная Горка 15 минут!

Будем рады пригласить вас на просмотр!  Поможем выгодно продать вашу недвижимость для покупки этого дома.

Параметры объекта

  • Тип объекта

    Дом

  • Площадь участка

    15 соток

  • Площадь общая

    266 м²

  • Площадь жилая

    84 м²

  • Площадь кухни

    21 м²

  • Уровней в доме

    2

  • Год постройки

    2012

  • Материал стен

    Силикатные блоки

  • Материал крыши

    Черепица

  • Отопление

    На газу

  • Газ

    Есть

  • Канализация

    Центральная

  • Электроснабжение

    Есть

  • Вода

    Центральный водопровод

  • Статус земли

    Пожизненно наследуемое владение

  • Возможен торг

    Да

  • Условия продажи

    Чистая продажа

  • Номер договора

    116/1 от 26.01.2026

Примечание

Уютный семейный дом, где каждому найдётся место. Двухуровневый жилой дом общей площадью 266 м!

Местоположение