Уютный дом в аг. Зазерье
433 410 р.
Тип
Участок
Общая
Жилая
Описание
Уютный дом, где хочется растить детей и встречать рассветы!
Продается просторный дом площадью 230 кв.м на участке 21,8 соток в живописном районе , аг. Зазерье. Это не просто стены, а место силы для вашей семьи.
Почему этот дом — именно то, что вы искали:
Комфорт: В доме выполнен качественный ремонт, установлена кухня мечты и уютный камин в гостиной.
Все удобства: Газ, отопление, чистейшая вода — городской комфорт на лоне природы.
Участок: Ухоженный газон для пикников, баня и беседка для душевных вечеров.
До школы и магазина — 10 минут пешком.
30 км от Минска; маршрутки ходят каждый час от автостанции Автозаводская( метро Могилевская).
Также в 3-х км железнодорожная станция Зазерка. Рядом лес для прогулок.
Документы готовы к сделке. Звоните, чтобы записаться на просмотр — в этот дом влюбляешься с первого взгляда!
Звоните прямо сейчас и записывайтесь на просмотр!
Поможем с реализацией Вашей недвижимости при покупке этой.
Звоните и приезжайте на просмотр!
Также со мной можно связаться через мессенджеры:
Параметры объекта
- Тип объекта
Дом
- Площадь участка
21.89 сотки
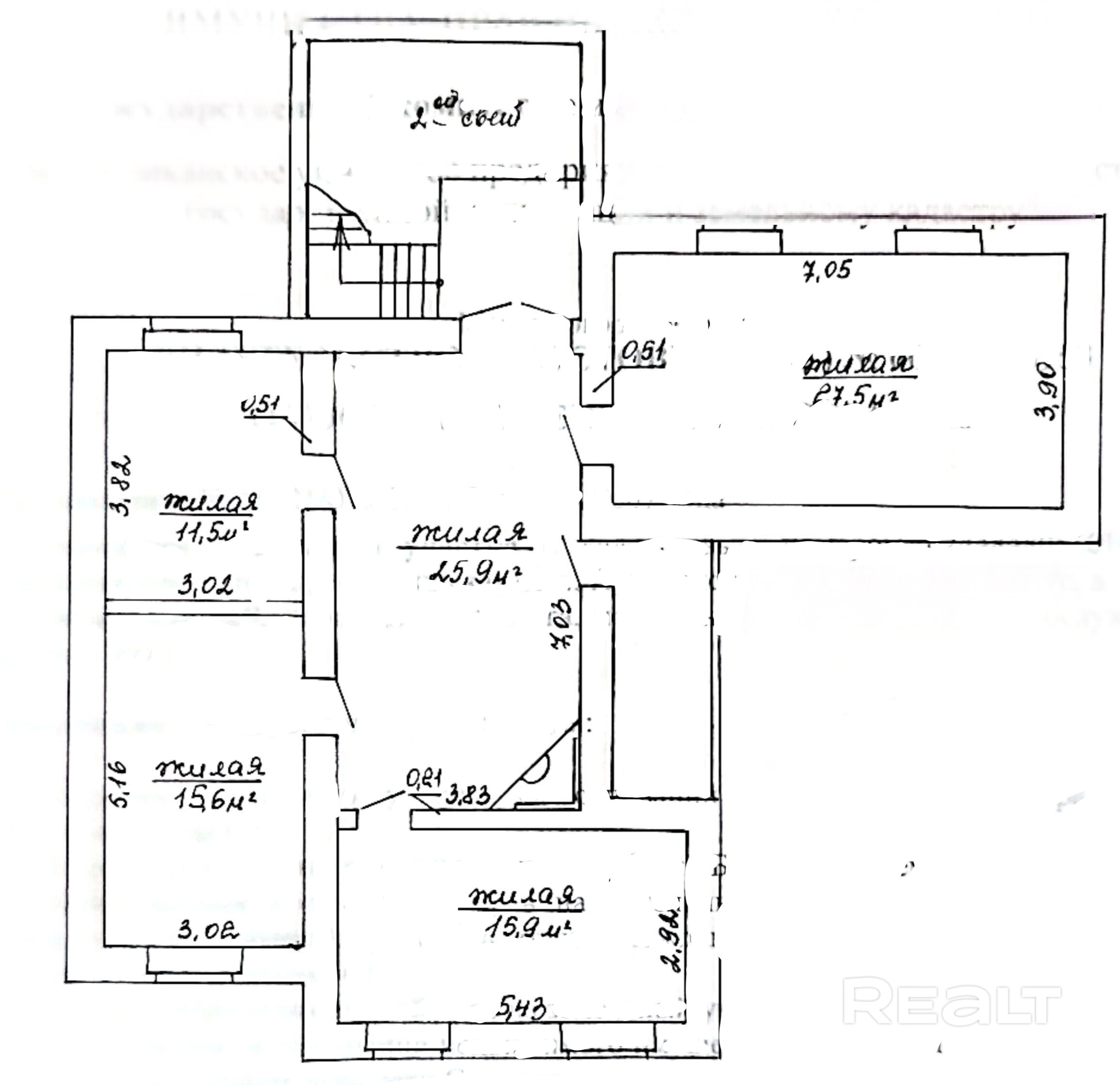
- Площадь общая
230.1 м²
- Площадь жилая
132.1 м²
- Площадь кухни
10 м²
- Уровней в доме
2
- Год постройки
1999
- Процент готовности
100
- Материал стен
Кирпичный
- Материал крыши
Металл
- Отопление
На газу
- Канализация
Центральная
- Электроснабжение
Есть
- Вода
Центральный водопровод
- Баня
Есть
- Гараж
Есть
- Статус земли
Пожизненно наследуемое владение
- Возможен торг
Да
- Условия продажи
Чистая продажа
- Номер договора
160/1 от 04.02.2026
Инфраструктура
Беседка
Сад
Ландшафтный дизайн
Дмитрий Потупчик
Агент по недвижимости
Примечание
Местоположение
- Область
- Район
- Населенный пункт
- Улица
- Сельсовет
Голоцкий с/с
- Направление
Пуховичское, 22 км от МКАД
- Координаты
53.660878753, 27.80322844
