Купить коттедж, с/т Триумф 3, Московское (Минский р-н, Минская область)
546 780 р.
Чистая продажа
Следить за ценой
Коттедж
Тип
12 сот
Участок
127 м²
Общая
110.5 м²
Жилая
18.04.2026ID 4051912
Параметры объекта
- Тип объекта
Коттедж
- Площадь участка
12 соток
- Площадь общая
127 м²
- Площадь жилая
110.5 м²
- Год постройки
2026
- Процент готовности
80
- Материал крыши
Гидроизоляция
- Отопление
Электрическое
- Электроснабжение
Есть
- Вода
Центральный водопровод
- Статус земли
Частная собственность
- Условия продажи
Чистая продажа
Инфраструктура
Рядом лес
Продавец
Дмитрий
Контактное лицо
Примечание
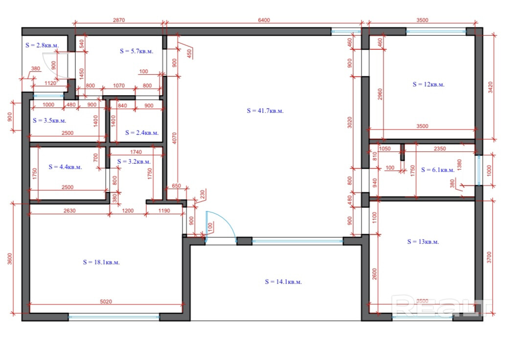
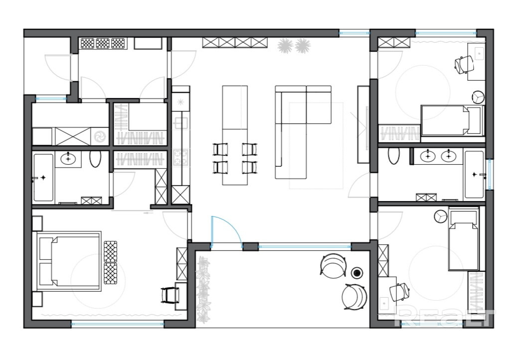
Дом расположен в закрытом коттеджном поселке в 13 км от Минска. Московское направление. Участок 12 соток, центральные коммуникации, вода, электричество 25 квт, три фазы. Дом внешне готов на 100% изнутри под чистовую отделку, вода, электричество введено в дом. В поселке на каждую улицу заезд с автоматическими воротами и видеонаблюдением. Дом построен по технологии Prefab, заводского производства премиум качества. Большие панорамные окна с закаленными стеклами. Двери и окна дерево алюминий.
Местоположение
- Область
- Район
- Населенный пункт
- Улица
Московское
- Сельсовет
Колодищанский с/с
- Координаты
53.983438639, 27.878682472
