Продается дом в коттеджном поселке в 14 км от МКАД.
202 188 р.
Тип
Участок
Общая
Описание
Продается дом в коттеджном поселке в 14 км от МКАД.
Живописное Логойское направление.
Участок 19.31 сотка на праве собственности имеет подъездные пути с двух сторон участка.
Газ подведен к дому (сделана разводка батарей по дому), печное отопление, вода введена в дом (центральное водоснабжение), установлен бойлер, местная канализация, электричество. Рядом остановка общественного транспорта, 5 минут езды до Острошицкого городка, где находятся школа с бассейном, детский сад, магазины, почта, банк, баня и др.
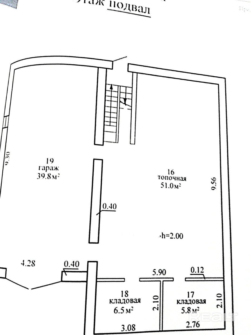
Площадь дома 163.1 кв.м.: на первом этаже три изолированные жилые комнаты, кухня, раздельный санузел, закрытая терраса; на мансардном этаже – три изолированные жилые комнаты, просторный коридор с выходом на балкон; в цокольном этаже – гараж, топочная, кладовые. На участке посажены плодовые деревья, есть блочный сарай.
Это отличное место для жизни и отдыха недалеко от Минска!
Параметры объекта
- Тип объекта
Дом
- Площадь участка
19.31 соток
- Площадь общая
163.1 м²
- Уровней в доме
3
- Год постройки
1990
- Материал крыши
Шифер
- Отопление
Печное
- Газ
Есть
- Канализация
Местная
- Электроснабжение
Есть
- Вода
Центральный водопровод
- Гараж
Есть
- Статус земли
Частная собственность
- Условия продажи
Чистая продажа
- Номер договора
255/26-1 от 15.02.2026
Инфраструктура
Хозпостройки
Примечание
Местоположение
- Область
- Район
- Населенный пункт
- Улица
- Номер дома
3
- Сельсовет
Острошицко-Городокский с/с
- Направление
Логойское, 14 км от МКАД
- Координаты
54.081763794, 27.700969509
