Новый дом 2025 г.п. - д. Присёлки ( Логойское-Мядельское направление). 200 кв.м.
373 910 р.
Чистая продажа
Следить за ценой
Дом
Тип
14.69 сот
Участок
210 м²
Общая
141 м²
Жилая
2 часа назадID 4069948
Описание
Коттедж 2025 года постройки с панорамным остеклением и террасой (балконом) —
20 минут от Минска!
Продается дом в д. Присёлки (Мядельское направление)
- Дата возведения дома – лето 2025 года
- Фундамент свайно-ростверковый (заливался с соблюдением технологии подрядной организацией, сертификат качества и выдерживание всех необходимых сроков)
- Монолитные перекрытия на втором этаже + монолитная крыша
- Бетонная лестница
- Частичное Остекление: Окна Rehau Delight (70 мм) Стеклопакеты мультифункциональные (защита от жары летом + энергосбережение зимой).
Важно: Армировка 2 мм предотвращает деформацию профиля на солнце — ваши окна будут работать идеально десятилетиями.
- Электричество: Выделено 25 кВт (возможность электроотопления, зарядки для электромобилей и т.д.).
- Коммуникации: Газ по улице на стороне нашего участка.
Локация и инфраструктура:
- Адрес: д. Присёлки, ул. Центральная, 11а (Белоручский с/с).
- Транспорт: Всего 20 км от МКАД по отличной дороге. До самого дома ведет асфальтированная дорога.
- Для семьи: В 3 км (д. Сёмково) расположены школа и детский сад. Организован бесплатный подвоз детей на школьном автобусе.
- Природа: В шаговой доступности лес и река Вяча — идеальные места для прогулок и отдыха.
Продуманная планировка -
1 этаж — зона общения и уюта:
- Просторная кухня-гостиная с окном над рабочей зоной и выходом на террасу.
- Кладовая прямо у входа.
- Две жилые комнаты..
- Комбинированная постирочная/котельная.
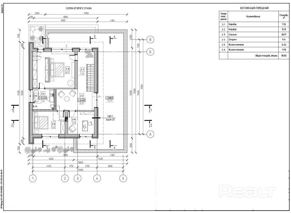
2 этаж — приватная зона:
- Роскошная мастер-спальня с личным санузлом и гардеробной.
- 2 жилые комнаты
- Главная фишка: выход на огромную эксплуатируемую террасу(балкон). Здесь можно обустроить зону отдыха под открытым небом или застеклить ее под зимний сад.
Участок
- 15 соток в частной собственности. - ровный
- Есть возможность приобретения соседнего участка для расширения владений.
- В наличии весь строительный проект и сметная документация.
Звоните! Просмотр в любое время и в выходные тоже!
Параметры объекта
- Тип объекта
Дом
- Площадь участка
14.69 соток
- Площадь общая
210 м²
- Площадь жилая
141 м²
- Площадь кухни
61.5 м²
- Уровней в доме
2
- Год постройки
2025
- Процент готовности
70
- Материал стен
Силикатные блоки
- Ремонт
Не достроен
- Газ
Магистральный
- Канализация
Нет
- Электроснабжение
Есть
- Вода
Нет
- Статус земли
Частная собственность
- Возможен торг
Да
- Условия продажи
Чистая продажа
- Номер договора
75/1 от 11.03.2026
Инфраструктура
Рядом лес
Строительные материалы
Примечание
2025 год построй в д. Присёлки (20 км от МКАД). • Конструктив: Свайно-ростверковый фундамент (сертификат качества), монолитные перекрытия и крыша, бетонная лестница. • Окна: Rehau Delight 70 мм, армировка 2 мм, мультифункциональные стеклопакеты. • Сети: Электричество 25 кВт (под электроотопление/авто), газ по границе участка. • Участок: 15 соток, частная собственность, асфальт до дома. • Планировка: 5 комнат, мастер-спальня, кухня-гостиная, эксплуатируемая терраса на крыше.
Местоположение
- Область
- Район
- Населенный пункт
- Улица
- Номер дома
11/А
- Сельсовет
Беларучский с/с
- Направление
Логойское, 19.79 км от МКАД
- Координаты
54.143798041, 27.607261332
