Фахверковый дом премиального уровня в сосновом лесу!
416 302 р.
Тип
Участок
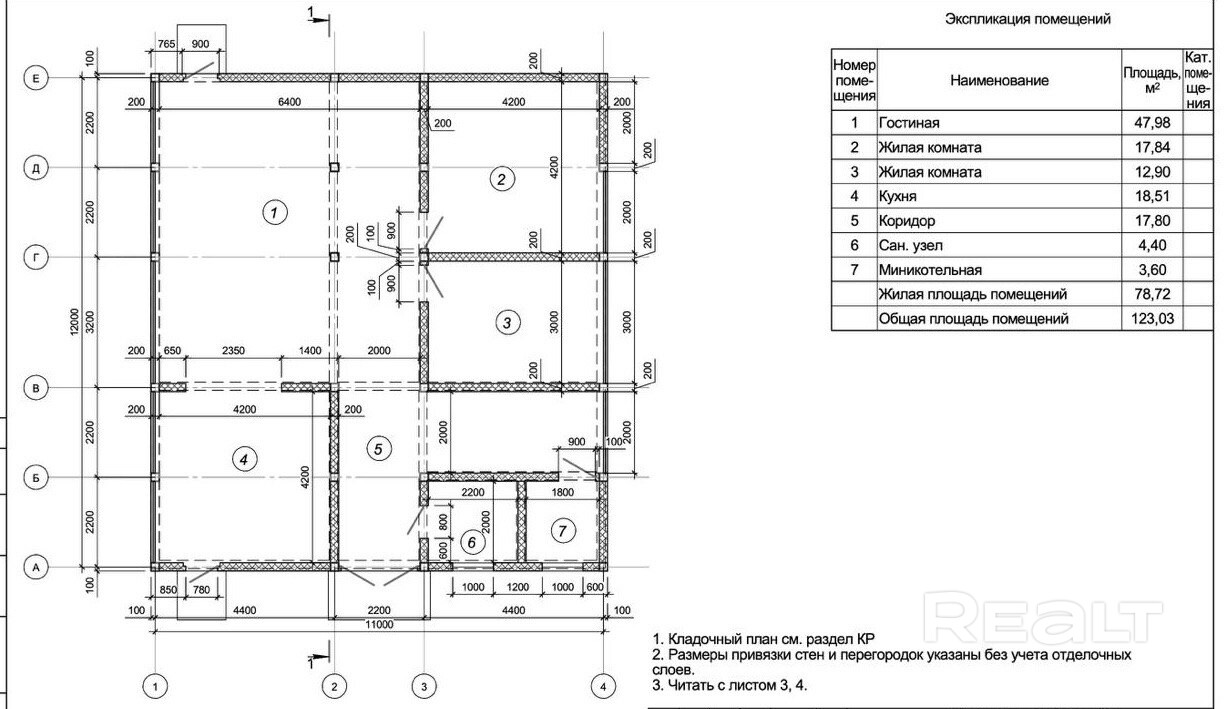
Общая
Жилая
Описание
Фахверковый дом премиального уровня в сосновом лесу это эстетика, надежность и комфорт в каждой детали.
Современный фахверковый дом, в котором сочетаются архитектурная выразительность, высокое качество материалов и продуманная инженерия для комфортной жизни в любое время года.
Конструктив дома выполнен из клеёного бруса сечением 200×200 мм - это прочность, долговечность, идеальная геометрия и благородный внешний вид натурального дерева. Такой дом не только выглядит статусно, но и обеспечивает высокий уровень надежности на десятилетия.
Особое внимание уделено энергоэффективности:
Стены утеплены каменной ватой 150 мм;
Кровля утеплена каменной ватой 200 мм;
Кровельное покрытие — металлочерепица, практичная, долговечная и эстетичная.
В доме уже выполнена чистовая стяжка, что существенно ускоряет переход к финишной отделке и экономит ваше время и бюджет. По всему дому смонтированы теплые полы, создающие равномерное, мягкое тепло и максимальный комфорт в холодный сезон. Дополнительно предусмотрены выходы под конвекторы, что дает больше гибкости в настройке системы отопления под ваши предпочтения.
Настоящая гордость этого дома — огромные панорамные энергоэффективные окна с тонировкой в массе. Они наполняют пространство светом, визуально расширяют интерьер, открывают потрясающий обзор и при этом сохраняют приватность, комфортный микроклимат и высокую теплоизоляцию.
Это дом для тех, кто ценит: стильную архитектуру, качественные материалы, современные технологии и атмосферу загородной жизни без компромиссов.
Эксклюзивный новый уникальный коттедж в сосновом лесу в престижном коттеджном посёлке "Шеметово"; Московское направление; приглашаем на просмотр! Торг!
Энергоэффективный дом; построенный по индивидуальному архитектурному дизайн-проекту; продуманная архитектурная планировка; все строительные и отделочные работы выполнялись по проектным чертежам, в строгом соответствии с технологическими процессами и знаниями новейших тенденций современного деревянного загородного строительства; высококачественные материалы строительства; долговечный и надёжный конструктив:
-Коммуникации: свет 380-10 квт, водопровод скважина 90 метров, канализация автономная, интернет!
-Земельный участок 14 соток, сосны на участке;
-Респектабельные соседи!
-Коттеджный Посёлок «Шеметово» с подъездными путями по асфальтированным дорогам, расположен в экологически чистой местности, окружен лесными массивами; 20 минут до Минска!
-Развитая инфраструктура на доступном расстоянии: магазины, школа и детский сад, почта, банк, медучреждения и аптеки.
-Чистейший сосновый лес, рыбалка, грибы, ягоды. Одно из лучших мест в пригороде Минска для жизни и отдыха, не упустите свой шанс приобрести великолепный загородный особняк, для успешных людей, торг.
Поможем профессионально быстро и выгодно продать Вашу недвижимость в связи с покупкой вышеуказанного объекта недвижимости, размещение рекламных объявлений на лучших специализированных интернет площадках Республики Беларуси, России, стран ближнего и дальнего зарубежья-70 стран мира, Профессиональная фото-видео-аэросъемка, рекламные ролики в социальных сетях, а также использование самых современных и уникальных технологий для успешной продажи Вашего объекта недвижимости. Ответим на Ваши вопросы, предоставим всю необходимую информацию. Напишите Нам в удобный для Вас мессенджер: Viber | Telegram | WhatsApp.
Параметры объекта
- Тип объекта
Коттедж
- Площадь участка
14 соток
- Площадь общая
120 м²
- Площадь жилая
77.3 м²
- Площадь кухни
17.7 м²
- Уровней в доме
1
- Год постройки
2026
- Процент готовности
100
- Новостройка
Да
- Материал стен
Бревенчатый
- Материал крыши
Черепица
- Ремонт
Евроотделка
- Отопление
Электрическое
- Канализация
Местная
- Электроснабжение
Есть
- Вода
Скважина
- Статус земли
Частная собственность
- Возможен торг
Да
- Условия продажи
Чистая продажа
- Номер договора
26/3 от 24.03.2026
Инфраструктура
Рядом лес
Александр Чукович
Риэлтер
Примечание
Местоположение
- Область
- Район
- Населенный пункт
- Улица
- Номер дома
1/Б
- Сельсовет
Пекалинский с/с
- Направление
Могилёвское, 24.6 км от МКАД
- Координаты
53.912325, 28.06628
