Купить дом, д. Цепра, ул. Луговая, 23 (Клецкий р-н, Минская область)
139 690 р.
Тип
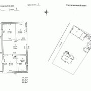
Участок
Общая
Жилая
Описание
Комфортабельный, полностью готовый к проживанию дом в д. Цепра, Клецкий район.
Есть Огромный гараж с роллетными воротами 4 х 3 метра, открывающимся с пульта и термоизолированной частью.
Благоустроенный участок- 17.57 соток с возможностью его увеличения до 50 соток.
Тихое место.
Красивый вид из окон.
Уютная терраса.
Натяжные потолки.
Тёплые полы.
Рядом Клецк.
Недалеко от дома небольшая речка в которой водится рыба.
Новая ЛЭП , тариф 4 копейки за киловатт.
Электрическое и печное отопление, возможно подключение теплового насоса.
Instagram: realestate.minsk
Со сроками и условиями проведения торгов (конкурсов), указанными в извещении о проведении торгов (конкурсов) можно ознакомиться в газете "ЗВЯЗДА" № 83(30722) от 02.05.2026г.
Торговая площадка ООО "Вектор Дом" - организация и проведение конкурсных торгов.
УНП 193922679 220030, г. Минск, ул. Зыбицкая, 6, пом.39
Договор № 46/1 от 23.03.2026г.
Параметры объекта
- Тип объекта
Дом
- Площадь участка
17.57 соток
- Площадь общая
65.9 м²
- Площадь жилая
44.6 м²
- Уровней в доме
1
- Год постройки
1973
- Материал стен
Бревенчатый
- Отопление
Электрическое
- Газ
Есть
- Канализация
Местная
- Электроснабжение
Есть
- Вода
Скважина
- Статус земли
Пожизненно наследуемое владение
- Условия продажи
Чистая продажа
- Аукцион
Да
Продавец
Примечание
Местоположение
- Область
- Район
- Населенный пункт
- Улица
- Номер дома
23
- Сельсовет
Краснозвездовский с/с
- Направление
Брестское, 138 км от МКАД
- Координаты
53.029978, 26.718394
