🏡 280 м² - с характером, 3 этажа, 5 спален, баня, гараж с автоматикой, терраса - 15 минут от МКАД
789 365 р.
Тип
Участок
Общая
Жилая
Описание
Вы всё ещё ищете квартиру? Этот дом просит вас остановиться и подумать ещё раз. 😏
Есть дома, которые строят на продажу. А есть — которые строят для себя. С армопоясами, тепловизором и котлом, название которого хочется произносить с немецким акцентом. Этот дом — строили для себя! Но жизнь распорядилась иначе, и теперь он ищет свою семью.
===
📍 д. Старое Село, ул. Центральная, 72 | Хатежинский с/с, Минский район
🚗 12 км от МКАД | 15 минут до города по М6
🏫 Школа, детский сад, магазин — всё в деревне
🌾 Вокруг — холмы, смешанные леса, истоки реки Птичь
===
Что внутри? Садитесь поудобнее!
🏠 Три уровня. 280 м2. Ноль соседей за стеной.
===
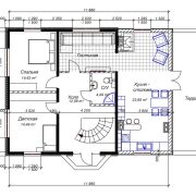
1️⃣ Первый этаж — тут уже пахнет домом!
===
🍳 Кухня-столовая 26 м2 — отделка 100%. Ламинат, плитка, споты, фартук «кабанчик». Ставьте холодильник — и живите!
🛋️ Гостиная 23 м2 — с бетонной винтовой лестницей, которая сама по себе арт-объект. Гости будут спрашивать: «Это вы в Pinterest нашли?» 😉
🛁 Санузел 12 м2 — угловая ванна, мозаичная акцентная стена. Это не санузел, это ритуал!
🚗 Гараж 29 м2 — автоматические ворота Hörmann ProLift, вход прямо в дом, погреб внизу. Зимой из машины — в тапочки за 10 секунд. Без куртки. Без снега на ботинках. Бесценно 👌
🔥 Котельная 9,6 м2 — газовый конденсационный котёл Bosch Condens 7000 W. Звучит серьёзно, потому что - это серьёзно!
===
2️⃣ Второй этаж — у каждого своё пространство
===
🚪 4 комнаты: 17,7 / 14,4 / 14,0 / 13,3 м2 — хватит всем. Детям, гостям, вашей коллекции LEGO (мы не осуждаем 😄)
🏛️ Холл 16 м2 — центральный, светлый, связывает все комнаты
🚿 Санузел на этаже — утром не надо бежать вниз
☀️ Терраса 11 м2 — выход из спальни. Вы открываете дверь, а там — поля до горизонта. Кофе в руке. Птицы поют.... Лепотааааа...! Это не отпуск. Это ваш вторник !!!
===
3️⃣ Мансарда — 73 м2 возможностей
===
🎬 Домашний кинотеатр? ✅
🎨 Мастерская? ✅
🧘 Йога-зал? ✅
👾 Игровая для детей размером с однушку? ✅
💑 Мастер-спальня с гардеробной? ✅
Высота потолка до 2,55 м, мансардные окна, два дымохода (камин — по желанию). Свободная планировка — вы решаете, что здесь будет! Дерзайте!
===
А теперь — для тех, кто разбирается!
⚙️ Инженерия — тут не экономили (и это чувствуется)
===
🔥 Отопление - Газовый конденсационный котёл Bosch Condens 7000 W
🦶 Тёплый пол - Водяной, весь 1-й этаж, коллекторы Grundfos ALPHA2
🪟 Окна - Стеклопакеты ПВХ, фурнитура Winkhaus (если что - Германия) 🇩🇪
🚗 Гараж - Автоматика Hörmann ProLift (нажал кнопку — заехал)
⚡ Электричество - 220В + 380В (мастерская, сварка, майнинг — шучу. Хотя…)))
💨 Вентиляция - Вытяжная + полная разводка под рекуперацию (редкость!)
Разводка сделана, вентилятор стоит. Осталось подключить — и у вас дом, который дышит сам.
💧 Вода - Скважина 15 м, фильтрация, насос «Водолей»
🚽 Канализация - 2 переливных колодца, утеплённые трубы
🔍 Проверено тепловизором — мостиков холода нет.
📊 Расход за зиму: ~1200 м³ газа. Для 280 м2 — это как заправлять седан, ожидая аппетит внедорожника 😎
===
🧱 Конструктив — коротко и по делу
===
- Фундамент: монолит + ФБС, армопояс, утепление пенополистиролом
- Стены: газосиликат + дерево, утепление Paroc 5–10 см
- Крыша: гибкая черепица Технониколь, утепление Paroc 10–15 см
- Перекрытия 1 этажа: усиленные ЖБ плиты (хотите камин на втором? Пожалуйста 🔥)
===
«Но ведь не всё готово?» — спросите вы. И это лучшая новость!
🎯 «Под чистовую» — это не минус. Это суперсила!
===
Давайте честно. Покупать чужой ремонт — это как носить чужие кроссовки. Вроде размер тот, но не то.
Здесь всё капитальное сделано: крыша, стены, инженерия, кухня. А дальше — вы выбираете ламинат, плитку, цвета, стиль. Без компромиссов. Без «ну, предыдущие хозяева любили бордовый…» 🙈
Вы не покупаете чужой вкус за чужие деньги. Вы создаёте свой дом!
===
🎁 Бонусы
===
🧖 Баня — коробка готова, подведены отопление, вода, электричество. Осталось навести красоту — и парьтесь на здоровье
🏗️ Забор — бетонный фундамент, металлопрофиль, откатные ворота с электроразводкой
🧅 Погреб в гараже — для закаток, вина и всего, что вы прячете от детей
🌿 Участок 15 соток — двор вымощен плиткой, газон
💸 Налог на землю — ~68 руб./год (вы не ослышались)
📋 Документы
✅ Все документы в порядке
✅ Один собственник
✅ Обременений нет
✅ Чистая продажа
===
Этот дом — как хороший костюм на заказ: основа пошита идеально, а финальную подгонку делаете вы. 🪡
===
📞 Звоните — покажу дом, отвечу на любые технические вопросы и дам потрогать стены. Они тёплые. Проверено тепловизором и руками. 🤝
Параметры объекта
- Тип объекта
Коттедж
- Площадь участка
15 соток
- Площадь общая
280.3 м²
- Площадь жилая
240.7 м²
- Площадь кухни
26.3 м²
- Уровней в доме
3
- Год постройки
2017
- Процент готовности
100
- Материал стен
Силикатные блоки
- Материал крыши
Черепица
- Отопление
На газу
- Газ
Есть
- Канализация
Местная
- Электроснабжение
Есть
- Вода
Скважина
- Баня
Есть
- Гараж
Есть
- Статус земли
Пожизненно наследуемое владение
- Условия продажи
Чистая продажа
- Номер договора
6/1-26 от 23.03.2026
Инфраструктура
Водоем
Рядом лес
Хозпостройки
Примечание
Местоположение
- Область
- Район
- Населенный пункт
- Улица
- Номер дома
72
- Сельсовет
Хатежинский с/с
- Направление
Раковское, 12 км от МКАД
- Координаты
53.892151152, 27.257639871
