Дача в 14 км от Минска
83 149 р.
- Минская областьМинский р-нс/т ЭкранСолнечная, 14
- На карте
Тип
Участок
Общая
Жилая
Описание
Адрес: СТ Экран, Солнечная 14
Планировка и размеры дома:
Дом общей площадью 79 кв.м., общая жилая площадь 63,8 кв.м., общая площадь жилых комнат 40,9 кв.м.
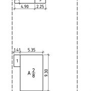
Размеры дома по периметру 1 этажа: 9,30 м *5,35 м.
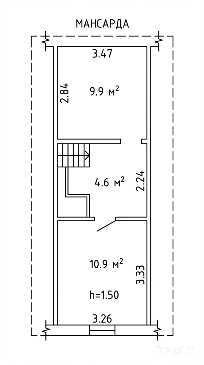
Размеры мансарды: 8,41 м * 3,26 м.
Первый этаж 38,4 кв.м, высокие потолки 2,6 м:
Светлая входная группа 13 кв.м., где можно обустроить прихожую и кухню; три жилые комнаты: проходная комната 10,5 кв.м. с установленной добротной печью, две раздельные – 6,6 и 8,3 кв.м.; мансардный этаж на две комнаты – 9,9 и 10,9 кв.м.
Отдельный вход в санузел с улицы(унитаз, канализация)
Характеристика строения, коммуникации:
Дом щитовой, 1970 года построения, проведена реконструкция в 2015.
Дом обложен кирпичем, установлены по всему дому окна ПВХ.
В процессе реконструкции были заменены деревянные лаги, добавлена обрешетка.
Кровля – металлочерепица, гидроизоляция - рубероид.
Отопление - добротная печь, свежая кладка, предусмотрено место для приготовления.
Коммуникации в доме: электричество 220.
Канализация местная для дома – 4 кольца полутораметровых, для бани – вкопана бочка на 200 литров без дна.
Установлен бойлер для нагрева воды в санузле, вода сезонная, планируются работы по реконструкции сезонного водопровода в СТ на центральный, круглогодичный.
В бане, кроме основной дровяной печи для растопки, установлен отдельно Титан для нагрева воды.
Участок:
4,01 сотки, частная собственность.
На участке кроме жилого дома: функционирующая дровяная баня, здесь же оборудована ванная; Хозблок - дровник.
Установлен забор из металлопрофиля.
Инфраструктура рядом:
Товарищество большое, почти в 300 домов, многие живут круглогодично.
Закрытая территория товарищества, на въезде - автоматические ворота.
Центральная въездная дорога асфальтирована в СТ, регулярно чистится от снега в зимний период.
В сезон в СТ регулярно приезжает автолавка.
СТ окружает прекрасный сосновый лес, рядом расположен санаторий «Зелёный бор», что подчёркивает экологичность и оздоровительный потенциал местности. Всего в 8 км - Заславское водохранилище, где можно купаться, загорать, кататься на лодке и рыбачить.
Ж/Д станция “Зеленое” в 3,6 км или 43 минутах ходьбы.
Можно добраться:
На машине: 20 минут от края кольцевой (выезд – через Ждановичи).
Своим ходом: Электричкой Минск – Молодечно (в дороге 30 минут), до участка шагом 43 минуты; на маршрутке 2406 с остановки “Станция метро Каменная горка” в направлении СТ Ивушка до остановки “СТ Зорька” (15 минут в дороге) ,до участка 23 минуты пешком.
Не упустите шанс приобрести эту недвижимость!
Отличная локация для загородного отдыха!
Звоните и записывайтесь на просмотр!
Параметры объекта
- Тип объекта
Дача
- Площадь участка
4.01 сотки
- Площадь общая
79 м²
- Площадь жилая
63.8 м²
- Площадь кухни
9.9 м²
- Уровней в доме
2
- Год постройки
1970
- Процент готовности
100
- Материал стен
Кирпичный
- Материал крыши
Черепица
- Ремонт
Отделка деревом
- Отопление
Печное
- Газ
Нет
- Канализация
Местная
- Электроснабжение
Есть
- Вода
Центральный водопровод
- Баня
Есть
- Статус земли
Частная собственность
- Условия продажи
Чистая продажа
- Номер договора
491/1 от 27.11.2025
Инфраструктура
Беседка
Рядом лес
Хозпостройки
Наталья Гапутина
Агент по недвижимости
Примечание
Местоположение
- Область
- Район
- Населенный пункт
- Улица
Солнечная
- Номер дома
14
- Сельсовет
Ждановичский с/с
- Направление
Раковское, 14 км от МКАД
- Координаты
53.956597, 27.273256
