Скачать приложение Realt
Скачать

Купить дачу, с/т Надежда-Щербины, 187 (Минский р-н, Минская область)

352 513 р.

125 000 $
Чистая продажа
Следить за ценой
Дача

Тип

9 сот

Участок

145.9 м²

Общая

2 часа назадID 4018234

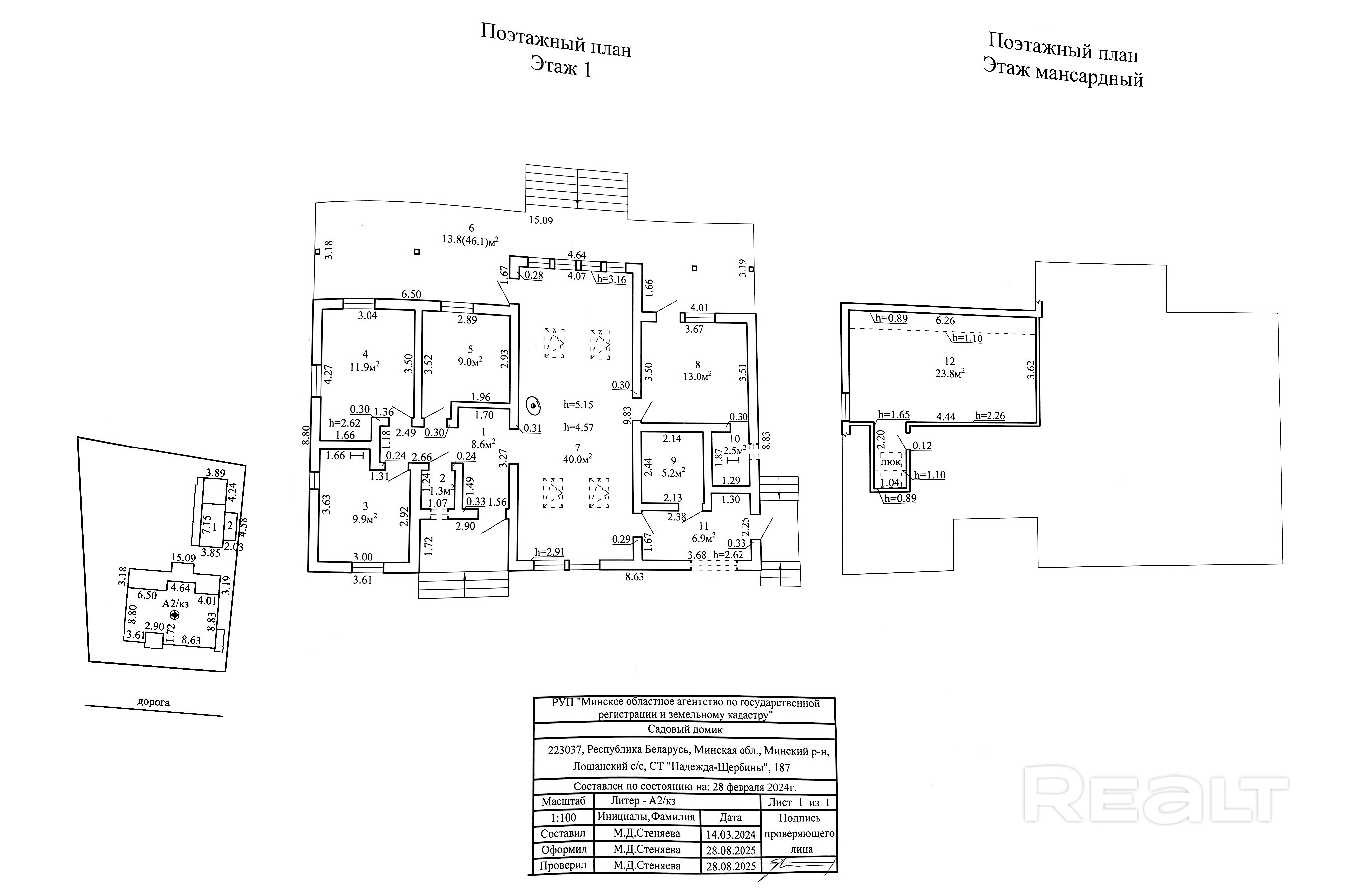
Описание

Современный одноэтажный дом, построенный по финскому проекту — стильный «дом-брюнет» с чёрным фасадом и большим участком 9 соток. 

Это готовый вариант для семьи, где ценят пространство, экологичность и возможность принимать гостей.  

Дом

Огромная кухня-гостиная — 40 м2, с окнами в пол и потолком до 6 м. Это пространство, где легко дышится и где собирается вся семья.

 4 полноценные спальни и 2 санузла.

Гардеробная 

Стильный ремонт в натуральных оттенках: каждая деталь продумана, дом полностью готов к жизни.

Использованы только экологически чистые материалы (металл, дерево, бетон, каменная вата). Ни грамма ОСБ и других неэкологических решений — дом строился для семьи с ребёнком-аллергиком.

Кухня укомплектована техникой Bosch + фильтр обратного осмоса.

Электричество 8 кВт (3 фазы), кондиционер, отопление электричеством или камином.

Собственная скважина (86 м), современная канализация.

Фальцевая кровля.

Участок и территория

Просторная терраса и дорожки из сибирской лиственницы.

Отдельно стоящая сауна с террасой, комнатой отдыха, летней кухней и туалетом.

Автоматические откатные ворота, удобная парковка для гостей.

Огороженная территория.                    

Расположение и товарищество

Дом стоит на угловом участке 9 соток, крайний в садовом товариществе — всего один сосед. С трёх сторон открываются виды на поле и лес.

Само товарищество — живое и развитое. Здесь много молодых семей с детьми, которые проживают в товариществе круглогодично:

Оборудованная детская площадка, праздники для детей и дружеская атмосфера.

В ближайшее время будет проведено оптоволокно, что делает место ещё удобнее для постоянного проживания.

До Заславля всего 5 км (школы, магазины, больница, вся инфраструктура), до Минска — 24 км.

Отличная логистика: удобный выезд, без пробок, рядом автобусная остановка.                                                    

Почему этот дом — особенный

Такие дома в Беларуси — редкость: финский проект, только экологичные материалы, просторная гостиная под 6 метров высотой, большой участок 9 соток и развитое товарищество с постоянными соседями. Здесь вы найдёте не только комфорт, но и настоящую атмосферу свободы и уюта.

И что особенно важно: построить такой дом с нуля сегодня обойдется заметно дороже, чем его текущая цена продажи. 

Вы экономите не только время и силы, но и деньги, получая готовое решение «под ключ».

Дом готов к показу.                      

После первого просмотра вряд ли останетесь равнодушными.

Запишитесь прямо сейчас, чтобы забронировать удобное время и успеть посмотреть этот дом первым.

Instagram: realestate.minsk

Позитивно реализуем Вашу недвижимость для покупки этого дома

Со сроками и условиями проведения торгов (конкурсов), указанными в извещении о проведении торгов (конкурсов) можно ознакомиться в газете "ЗВЯЗДА" № 38(30677) от 26.02.2026г.

Торговая площадка ООО "Вектор Дом" - организация и проведение конкурсных торгов.

УНП 193922679  220030, г. Минск, ул. Зыбицкая, 6, пом.39

Договор № 17/1 от 14.01.2026г.

Параметры объекта

  • Тип объекта

    Дача

  • Площадь участка

    9 соток

  • Площадь общая

    145.9 м²

  • Год постройки

    2023

  • Процент готовности

    100

  • Новостройка

    Да

  • Материал стен

    Бревенчатый

  • Материал крыши

    Металл

  • Ремонт

    Отделка деревом

  • Мебель

    Есть

  • Отопление

    Электрическое

  • Газ

    Нет

  • Канализация

    Местная

  • Электроснабжение

    Есть

  • Вода

    Скважина

  • Статус земли

    Частная собственность

  • Условия продажи

    Чистая продажа

  • Аукцион

    Да

  • Номер договора

    17/1 от 13.01.2026

Продавец

Примечание

Крайний в СТ "Надежда-Щербины" участок в тихой тупиковой улице, где минимум соседей. Участок 9 соток ровный крайний в садовом товариществе, с видом на поле и лес. Один этаж, высокие потолки. 4 полноценные спальни. 2 санузла. Огромная кухня-гостиная на 43 кв. м. с окнами в пол и мансардными окнами в крыше. На кухне техника Bosch (варочная панель, духовой шкаф, посудомоечная машина). Фильтр обратного осмоса воды. Огороженная территория. Откатные ворота, открываются с пульта. Терраса.

Местоположение