Продажа 3-комнатной квартиры, аг. Прилуки, Центральная 3
311 608 р.
4 549 р.≈ 1 606 $ за м²
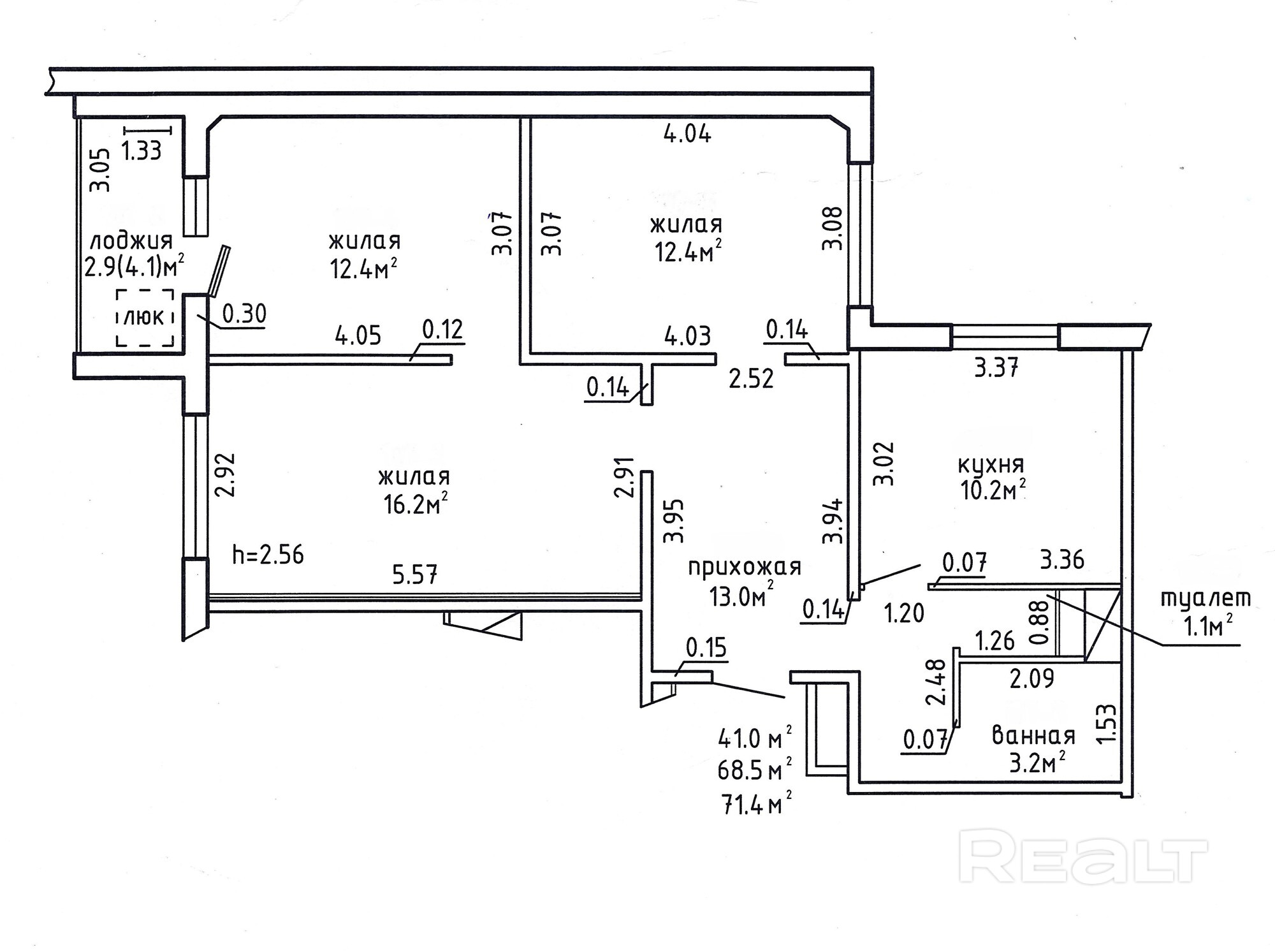
Общая
Жилая
Кухня
Этаж
Описание
Продается отличная 3-х комнатная квартира в современном агрогородке Прилуки.
Дом 2022 года постройки.
В квартире три изолированные комнаты и небольшая гостиная, окна на разные стороны, в квартире частично остаётся мебель.
По периметру дома установлено видеонаблюдение, во дворе оборудованная детская площадка.
Большой плюс этой квартиры в том что летом не бывает жарко, зимой очень тепло. Просторный тамбур на три квартиры, место для хранения велосипедов на этаже. Квартира с хорошим ремонтом, нет только кухонной мебели.
Есть школа и детский сад, а также строится новая школа с бассейном. Есть магазины, аптеки, поликлиника, почта и многое другое.
В сентябре этого года в аг Прилуки, рядом с домом, откроет свои двери новая школа с бассейном и стадионом.
В шаговой доступности усадебно-парковый комплекс Чапских и зеленая зона с озером. Хорошее транспортное сообщение, 10 минут езды до города.
Приглашаем на просмотр!!!
Параметры объекта
- Количество комнат
3
- Раздельных комнат
3
- Площадь общая
68.5 м²
- Площадь жилая
41 м²
- Площадь кухни
10.2 м²
- Год постройки
2022
- Этаж / этажность
8 / 9
- Тип дома
Панельный
- Балкон
Лоджия
- Ремонт
Хороший
- Высота потолков
2.5 м
- Санузел
Раздельный
- Стоянка автомобиля
Есть
- Собственность
Частная
- Условия продажи
Обмен
- Номер договора
117/2 от 26.06.2025
- Вид из окон
Во двор
Примечание
Местоположение
- Область
- Район
- Населенный пункт
- Улица
- Номер дома
3
- Сельсовет
Сеницкий с/с
- Направление
Слуцкое, 7 км от МКАД
- Координаты
53.7984, 27.4474
