Ратомская, 7 с эталонным видом на водохранилище Дрозды и пруд Лебяжий!
970 864 р.
8 144 р.≈ 2 894 $ за м²
Общая
Жилая
Этаж
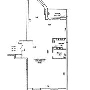
Описание
Ратомская, 7 с эталонным видом на водохранилище Дрозды и пруд Лебяжий!
Предлагается к продаже квартира премиум класса в одном из самых престижных и гармоничных районов Минска — «Лебяжий».
Локация мечты: красивейшие панорамы Минска — прямо перед вашими глазами.
Элитный ЖК «Браславский» соседствует с заказником «Лебяжий», водохранилищем и парком «Дрозды», рекой Свислочь и зеленым оазисом парковых зон.
Представьте, что ваше утро начинается не с будильника, а с невероятных восходов солнца над бескрайней водной гладью, а вечером город зажигает для вас тысячи огней, создавая самую романтичную подсветку.
Это — душа города.
Именно такие эмоции дарит эта квартира.
18 этаж с потолками 3,5м!
Панорамные окна от пола до потока стирают границу между интерьером, водной гладью и небом, наполняя пространство светом и воздухом.
Без отделки - полная свобода для планировки и дизайна на свой вкус.
Вся инфраструктура в пешей доступности: водохранилище и парк «Дрозды», «Олимпик-Арена», «Минск-Арена», "Falcon сlub", «Футбольный манеж», аквапарк «Лебяжий», СПА «Ривьера», велодорожка - 27 км, ТРЦ «Arena-City», «Минское море», множество кафе и ресторанов.
Отличная транспортная доступность, удобный выезд на МКАД.
Это не просто квартира – это роскошь обладать визитной карточкой Минска с видом, который дороже денег.
Свяжитесь для просмотра и обсуждения деталей.
Общая площадь указана по СНБ.
Лицензия: №02240/362 МЮ РБ, 31.07.2018
Параметры объекта
- Количество комнат
3
- Раздельных комнат
1
- Площадь общая
119.2 м²
- Площадь жилая
107.3 м²
- Год постройки
2016
- Этаж / этажность
18 / 25
- Тип дома
Каркасно-блочный
- Балкон
Лоджия
- Ремонт
Без отделки
- Высота потолков
3.5 м
- Санузел
Раздельный
- Собственность
Частная
- Условия продажи
Чистая продажа
- Номер договора
29/1 от 14.01.2026
Наташа Жих
Агент по недвижимости
Примечание
Местоположение
- Область
- Населенный пункт
- Улица
- Номер дома
7
- Район города
- Микрорайон
- Координаты
53.942, 27.4606
