УНИКАЛЬНАЯ ТРЁХКОМНАТНАЯ «СТАЛИНКА» ПОД РЕМОНТ — В ЛЕГЕНДАРНОМ ДОМЕ 1933 ГОДА!
304 445 р.
4 277 р.≈ 1 517 $ за м²
- г. Минскпер. Кабушкина, 17
- Автозаводская
- На карте
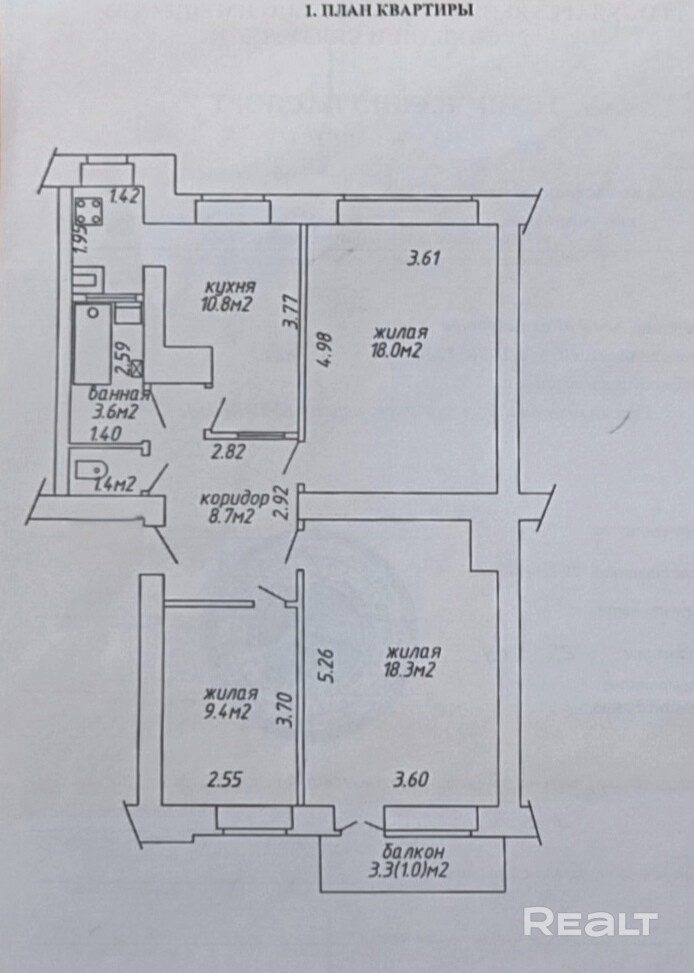
Общая
Жилая
Кухня
Этаж
Описание
Продается просторная трехкомнатная квартира под ремонт в историческом кирпичном доме 1933 года постройки — единственном в Минске, сохранившем оригинальный краснокирпичный фасад и архитектурную целостность эпохи.
Дом возведен для офицерского состава Красной Армии в микрорайоне «Красное Урочище» и представляет собой редкое сочетание конструктивизма и сталинского ампира.
Высота потолков — 3 метра.
Квартира расположена на 2-м этаже 4-этажного дома со скатной крышей.
Без лифта.
Особенности:
— В подъезде всего 8 квартир (по 2 на этаж), 3 подъезда в доме — минимум соседей, максимум приватности.
— Окна выходят на две стороны двора: виды на зеленый частный сектор, берёзовую рощу на территории и открытое небо — никаких «глухих» стен.
— Придомовая парковка для жильцов.
— Тишина, историческая атмосфера и ощущение жизни в старом Минске — при этом в 250 метрах от станции метро «Автозаводская».
Идеальный вариант для тех, кто ценит историю, пространство, свет и уникальную архитектуру. Возможность создать авторский интерьер в одном из самых редких домов столицы.
Поможем выгодно продать вашу недвижимость для покупки данного объекта.
Бесплатно проконсультируем, окажем профессиональную помощь в сложных вопросах с недвижимостью, обеспечим юридическое сопровождение сделки и безопасность взаиморасчетов.
Частное унитарное предприятие «Дианэст», УНП 190124316, лицензия №02240/54 от 06.06.2005. Договор №12/4 от 26.01.2026
Параметры объекта
- Количество комнат
3
- Раздельных комнат
3
- Площадь общая
71.2 м²
- Площадь жилая
45.7 м²
- Площадь кухни
10.8 м²
- Год постройки
1933
- Этаж / этажность
2 / 4
- Тип дома
Кирпичный
- Планировка
Сталинка
- Балкон
Балкон
- Ремонт
Удовлетворительный
- Санузел
Раздельный
- Стоянка автомобиля
Есть
- Возможен торг
Да
- Собственность
Частная
- Условия продажи
Чистая продажа
- Номер договора
12/4 от 25.01.2026
Тереса(Татьяна) Станкевич
Риэлтер
Примечание
Местоположение
- Область
- Населенный пункт
- Улица
- Номер дома
17
- Район города
- Микрорайон
- Координаты
53.867, 27.6433
