Продается уникальная 2-комнатная квартира с видом на Театр им.Янки Купалы
470 036 р.
8 515 р.≈ 3 074 $ за м²
- г. Минскул. Маркса, 39
- Купаловская
- 1 минута
- На карте
Общая
Жилая
Кухня
Этаж
Описание
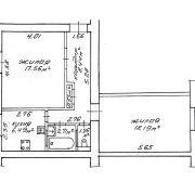
Продается уникальная 2-комнатная квартира с видом на Театр им.Янки Купалы и Александровский сквер, на 4 этаже 5-этажного кирпичного дома по ул.К.Маркса, 39.
Общая площадь - 55,18м2; жилая – 35,75м2, включает в себя две большие комнаты 18,19м2 и 17,56м2; кухня – 6,49м2. Санузел раздельный.
Потолки – 2,9 метра. Перекрытия – железобетонные. Окна – деревянные, выходят на две стороны дома.
Отсутствие несущих перегородок позволяет рассматривать различные варианты перепланировки.
Состояние квартиры – требуется косметический ремонт.
Исторический центр города. Вся инфраструктура: магазины, кафе, рестораны, музеи, театры, торговые центры, парки, салоны красоты, медицинские и спортивные центры, главный проспект города, станция метро и другой транспорт. Рядом детский сад, гимназия №42, лицей БГУ, образовательные центры и три университета. Отличный вариант для жизни и выгодных инвестиций.
Тихий зеленый двор с детской и спортивной площадками. Шлагбаум на въезде.
Ничего не ищем взамен. Готовы к разумному торгу.
Лицензия: 02240/483 МЮ РБ, 18.05.2024
Параметры объекта
- Количество комнат
2
- Раздельных комнат
2
- Площадь общая
55.2 м²
- Площадь жилая
37.8 м²
- Площадь кухни
6.5 м²
- Год постройки
1953
- Этаж / этажность
4 / 5
- Тип дома
Кирпичный
- Планировка
Сталинка
- Балкон
Балкон
- Ремонт
Нормальный
- Высота потолков
3 м
- Санузел
Раздельный
- Собственность
Частная
- Условия продажи
Чистая продажа
- Номер договора
25/1 от 24.02.2026
Александр Цепиков
Риэлтер
Примечание
Местоположение
- Область
- Населенный пункт
- Улица
- Номер дома
39
- Район города
- Микрорайон
- Координаты
53.9, 27.5617
