Купить 2-комнатную квартиру, д. Копище, ул. Николая Камова, 11 (Минский р-н, Минская область)
250 658 р.
6 650 р.≈ 2 401 $ за м²
Чистая продажа
Следить за ценой
37.7 м²
Общая
32.8 м²
Жилая
20 из 23
Этаж
вчера, 11:12ID 4048813
Параметры объекта
- Количество комнат
2
- Раздельных комнат
2
- Площадь общая
37.7 м²
- Площадь жилая
32.8 м²
- Год постройки
2026
- Этаж / этажность
20 / 23
- Балкон
Лоджия
- Ремонт
Без отделки
- Высота потолков
2.7 м
- Санузел
Совмещенный
- Стоянка автомобиля
Есть
- Собственность
Частная
- Условия продажи
Чистая продажа
- Вид из окон
Лес
Продавец
Анастасия
Контактное лицо
Примечание
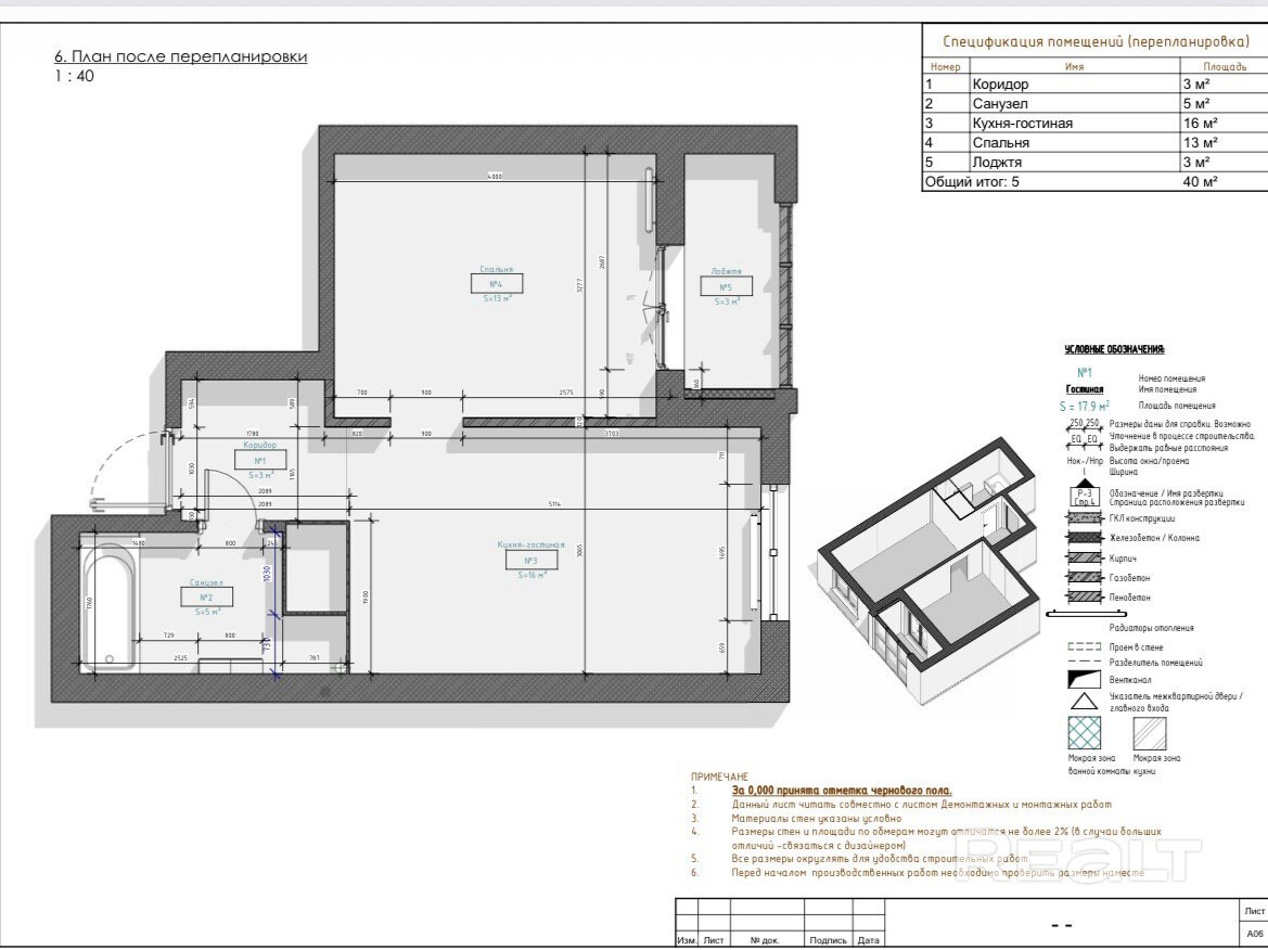
Евродвушка 39,9 м² с панорамным видом на 20 этаже. Витражные окна. Открытый вид без. Потолки 2,70 м. Формат: спальня + кухня-гостиная. Есть продуманный дизайн-проект — можно сразу начинать ремонт без лишних затрат времени и денег. Лоджия без отделки — реализуйте пространство под себя. Каркасно-блочный дом. Закрытая территория, детская площадка, велопарковка. Комната для мойки домашних животных. В квартире разведена электрика и оштукатурена
Местоположение
- Область
- Район
- Населенный пункт
- Улица
- Номер дома
11
- Сельсовет
Боровлянский с/с
- Направление
Московское, 4 км от МКАД
- Координаты
53.9644, 27.6552
