3-комнатная квартира с прекрасной планировкой в новом доме по улице Парковая, 4 в аг. Сеница.
325 489 р.
4 054 р.≈ 1 431 $ за м²
Общая
Жилая
Кухня
Этаж
Описание
Вы мечтаете о своем уголке в зеленом пригороде Минска? Тогда вам понравится эта 3-комнатная квартира с прекрасной планировкой в новом доме по улице Парковая, 4 в аг. Сеница.
Это молодой и перспективный район, где есть все для комфортной жизни и отдыха.
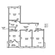
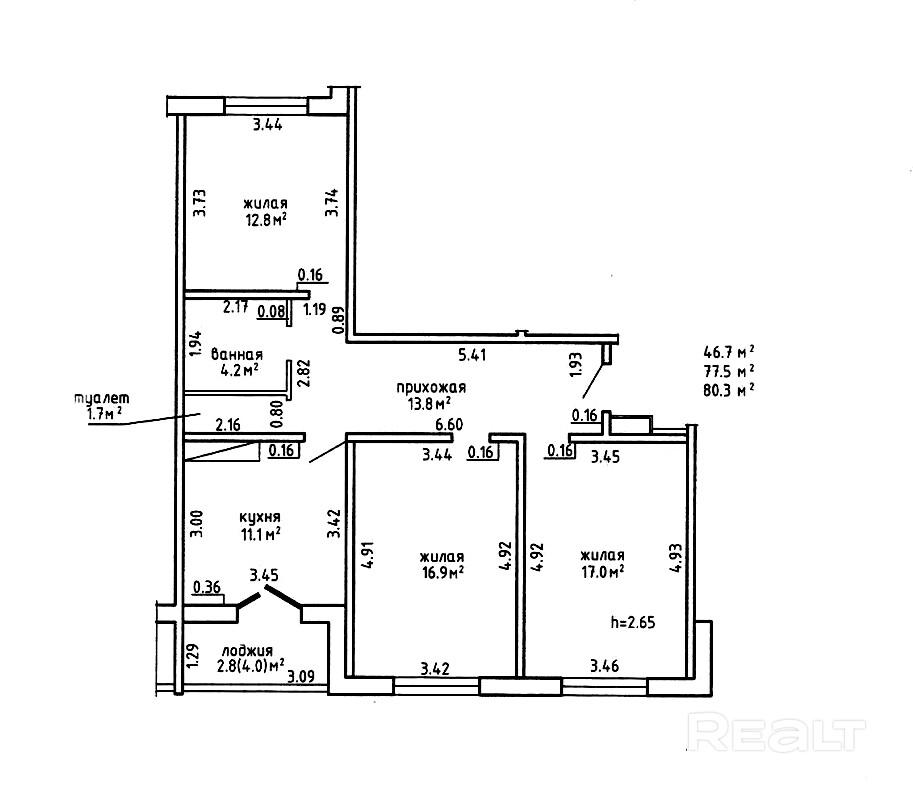
Расположена квартира на пятом этаже одиннадцатиэтажного панельного дома 2023 года постройки. Общая площадь квартиры составляет 80.3 по СНБ кв. метров, жилая - 46.7 кв. метров, кухня - 11,1 кв. метров.
Квартира под отделку, что дает вам возможность воплотить свои дизайнерские фантазии. Здесь вы найдете 3 просторные жилые комнаты, большую кухню с выходом на застекленную лоджию, где можно наслаждаться видом на природу.
Во дворе дома есть новая оборудованная детская площадка, где ваши дети будут в безопасности и веселье. Также есть большая свободная парковка, где вы всегда найдете место для своего автомобиля. В 380 метрах от дома протекает река «Сеница», где можно отдохнуть или просто погулять по берегу.
Вся инфраструктура в шаговой доступности: детский сад, новая школа с бассейном и большой спортивной площадкой, поликлиника и другие объекты. Рядом строится большой новый торговый центр «Сеница», где вы сможете сделать покупки.
Это прекрасный вариант для тех, кто любит большой город, но жить хочет в тишине и на свежем воздухе. Не упустите свой шанс приобрести квартиру своей мечты по доступной цене!
Лицензия: 02240/446 от 11.07.2022, Министерство юстиции РБ
Параметры объекта
- Количество комнат
3
- Раздельных комнат
3
- Площадь общая
80.3 м²
- Площадь жилая
46.7 м²
- Площадь кухни
11.1 м²
- Год постройки
2023
- Этаж / этажность
5 / 11
- Тип дома
Панельный
- Балкон
Лоджия
- Ремонт
Без отделки
- Высота потолков
2.7 м
- Санузел
Раздельный
- Стоянка автомобиля
Есть
- Собственность
Частная
- Условия продажи
Чистая продажа
- Номер договора
184/1 от 04.03.2026
Фаттория
Контактное лицо
Примечание
Местоположение
- Область
- Район
- Населенный пункт
- Улица
- Номер дома
4
- Сельсовет
Сеницкий с/с
- Направление
Слуцкое, 0.4 км от МКАД
- Координаты
53.826, 27.5091
