Купить 3-комнатную квартиру, г. Минск, ул. Лобанка, 81
449 445 р.
4 200 р.≈ 1 486 $ за м²
Чистая продажа
Следить за ценой
- г. Минскул. Лобанка, 81
- Каменная горка
- 15 минут
- На карте
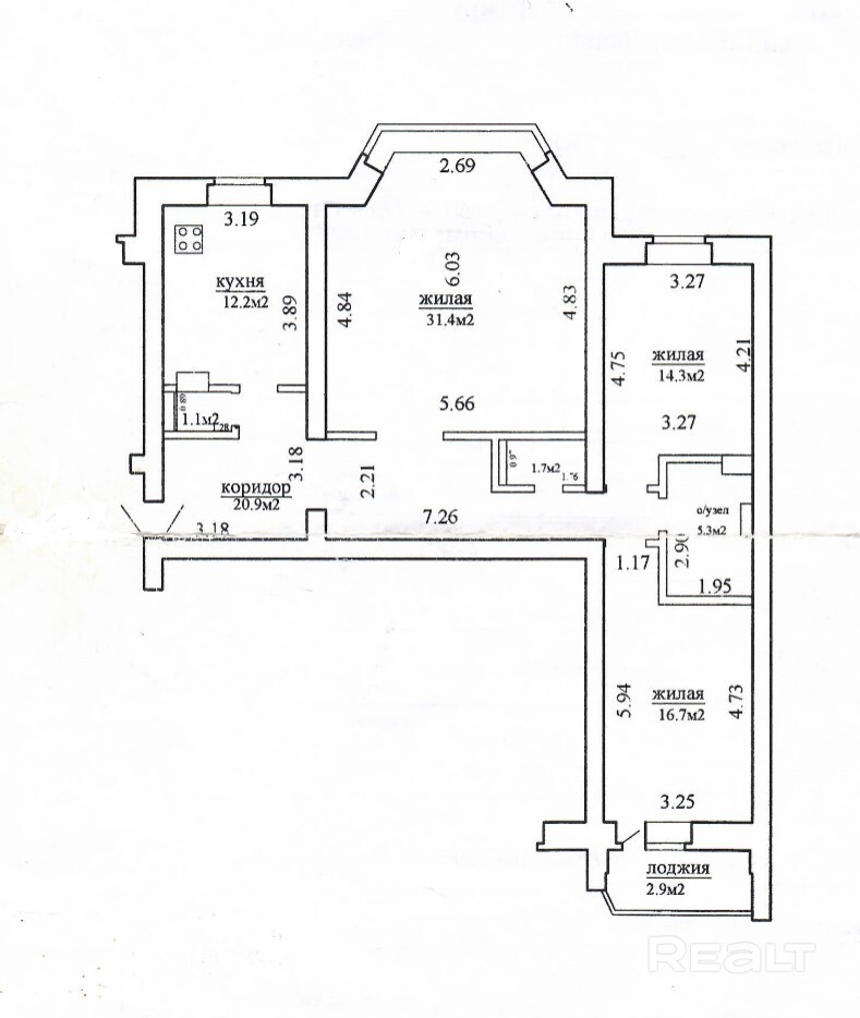
107 м²
Общая
65 м²
Жилая
12.2 м²
Кухня
2 из 9
Этаж
02.05.2026ID 4066532
Параметры объекта
- Количество комнат
3
- Раздельных комнат
3
- Площадь общая
107 м²
- Площадь жилая
65 м²
- Площадь кухни
12.2 м²
- Площадь по СНБ
107.5 м²
- Год постройки
2008
- Этаж / этажность
2 / 9
- Тип дома
Кирпичный
- Балкон
Лоджия
- Ремонт
Хороший
- Высота потолков
2.5 м
- Санузел
2 и более
- Стоянка автомобиля
Есть
- Возможен торг
Да
- Собственность
Частная
- Условия продажи
Чистая продажа
- Вид из окон
Во двор, На улицу
Удобства
Интернет
Телефонная сеть
Лифт
Видеонаблюдение
Продавец
Дмитрий
Контактное лицо
Примечание
Просторная и светлая квартира в кирпичном доме для комфортной семейной жизни. Готова к проживанию. Площадь по СНБ — 107 кв.м, 2 санузла. Выгодная цена — 1485 дол./кв.м. Чистый подъезд, большая парковка, детская площадка, хорошие соседи. Возможна перепланировка в 4-комнатную. Развитая инфраструктура: рядом ТЦ, школы, гимназии, поликлиники, сады, аптеки, лесопарк Медвежино. Чистая продажа, ТС.
Местоположение
Каменная горка15 минут
- Область
- Населенный пункт
- Улица
- Номер дома
81
- Район города
- Микрорайон
- Координаты
53.8871, 27.4313
