Продается 1-комнатная квартира в центре Минска Богдановича 64, корп.1!
226 157 р.
6 555 р.≈ 2 316 $ за м²
- г. Минскул. Богдановича, 64/1
- Площадь Якуба Коласа
- 15 минут
- На карте
Общая
Жилая
Кухня
Этаж
Описание
Продается 1-комнатная квартира в центре Минска Богдановича 64, корп.1!
Описание квартиры:
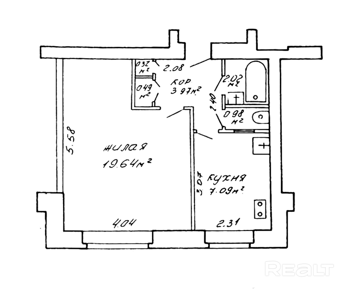
· Общая площадь 34,51 м2.
· комната 19,64 м2
· кухня 7,09 м2
· Потолки 2.48 метра
· Счётчики воды
· Напольное покрытия – линолеум
Описание дома:
· Кирпичный дом 1971 года постройки
· Ремонт дома был в 2018
· 5 этаж из 5
· Чистый подъезд и приятные соседи
· Парковка перед подъездом и уютный двор
· Оборудованная детская площадка
Инфраструктура:
· Детский ясли-сад №314,№404, школа №187.
· Аптеки, поликлиники, кафе, рестораны, продуктовые магазины, торговые и развлекательные центры , почта, отделения банков, салоны красоты, Комаровский рынок.
Транспортное сообщение:
· Станция метро «Якуба Коласа» в 12 минутах ходьбы.
· Автобусы, троллейбусы, маршрутные такси
· Воле дома остановка общественного транспорта
Отличный вариант как для жизни, так и под инвестиции.
Звоните, организуем показ в удобное для Вас время!
Лицензия: 02240/446 МЮ РБ, 11.07.2022
Параметры объекта
- Количество комнат
1
- Площадь общая
34.5 м²
- Площадь жилая
19.6 м²
- Площадь кухни
7.1 м²
- Год постройки
1971
- Этаж / этажность
5 / 5
- Тип дома
Кирпичный
- Ремонт
Хороший
- Высота потолков
2.5 м
- Санузел
Раздельный
- Собственность
Частная
- Условия продажи
Чистая продажа
- Номер договора
231/1 от 17.03.2026
Светлана
Контактное лицо
Примечание
Местоположение
- Область
- Населенный пункт
- Улица
- Номер дома
64/1
- Район города
- Координаты
53.9224, 27.5709
