Просторная квартира в центре с отличным видом!
894 754 р.
7 079 р.≈ 2 500 $ за м²
- г. Минскпер. Горный, 8
- Площадь Якуба Коласа
- На карте
Общая
Жилая
Этаж
Описание
Подберу квартиру в этом доме от 78,6 м до 126,4 м
Квартира без отделки – прекрасная возможность сделать именно такой ремонт, как нужно вам, а также реализовать свои дизайнерские идеи.
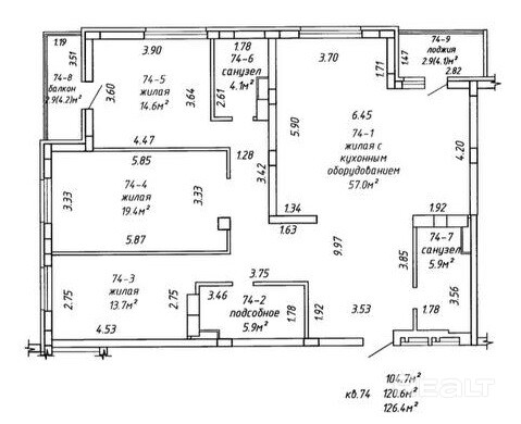
- Идеальная планировка – на две стороны дома!
- Большие изолированные комнаты
- Просторная кухня – гостиная
- Два санузла
- Подсобное помещение, которое можно использовать под гардеробную комнату
- Застекленная лоджия с панорамным остеклением
- Везде установлены качественные стеклопакеты
- Из оконоткрывается восхитительный вид на город
- Сделана полная разводка электрики
- Широкий тамбур
- Два лифта: пассажирский и грузовой
- Новый подъезд с красивой входной группой, для отделки использована итальянская плитка и декоративная штукатурка
- Консьерж, который смотрит за порядком в доме
- Гостевая автостоянка возле дома
-Подземный паркинг на 2 уровнях (за отдельную плату), предусмотрена зарядка для электромобилей. Лифт спускается прямо в паркинг.
- Видеонаблюдение
- Тихий и спокойный двор
- Сделаны новые детские площадки
Прекрасная локация – центр города, золотая горка. В ближайшей доступности вся инфраструктура города: многообразие магазинов, кафе и ресторанов, парки, театры, комаровский рынок, школа, садики, художественная школа, медицинские центры и многое другое.
10 минут пешком до ст. м. Якуба Коласа и ст. м. Площадь Победы!
Чистая продажа!
Возможна покупка в кредит!
Поможем быстро продать вашу квартиру, чтобы купить эту.
Звоните прямо сейчас, покажем в удобное для вас время.
ООО «ЭТАЖИ юнайтед»
УНП: 193673318
Договор 598/1 от 20.03.2026
Лицензия на оказание риэлтерских услуг №02240/460 МЮ РБ от 03.04.2023
За более подробной информацией обращайтесь по телефону (можно писать в мессенджеры Viber/WatsApp/Telegram)
Параметры объекта
- Количество комнат
4
- Раздельных комнат
4
- Площадь общая
126.4 м²
- Площадь жилая
104.7 м²
- Год постройки
2019
- Этаж / этажность
12 / 12
- Балкон
Лоджия
- Ремонт
Без отделки
- Высота потолков
2.7 м
- Санузел
2 и более
- Собственность
Частная
- Условия продажи
Чистая продажа
- Номер договора
598/1 от 19.03.2026
Анастасия Биянова
Агент по недвижимости
Примечание
Местоположение
- Область
- Населенный пункт
- Улица
- Номер дома
8
- Район города
- Микрорайон
- Координаты
53.9102, 27.5886
