4-комн. квартира 56,7 м2 с балконом
121 711 р.
2 146 р.≈ 758 $ за м²
Общая
Жилая
Кухня
Этаж
Описание
4-комн. квартира 56,7 м2 с балконом
❤️ 4-комнатная квартира 56,7 м2 на 4 этаже кирпичного дома 1967 г. с застеклённым балконом и окнами на две стороны. Аккуратный ремонт, деревянные полы, частично остаётся мебель. Тихий двор, школы, рынок, медколледж и магазины рядом, удобный транспорт и выезд к ж/д станции и автовокзалу.
Адрес: г. Слуцк, ул. Виленская д. 57
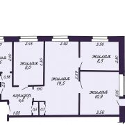
-Квартира расположена на 4 этаже кирпичного 5-этажного дома, общей площадью 56,7 кв.м., жилая — 44,9 кв.м., с застеклённым балконом.
-Планировка рациональная, с окнами на две стороны дома — в квартире много естественного света и ощущение пространства.
-Деревянные полы создают тёплую основу интерьера, а ремонт выполнен аккуратно, чуть выше уровня косметического: стены в спокойной гамме, потолки с декоративной отделкой, всё поддерживается в хорошем состоянии.
-В прихожей установлен вместительный шкаф-купе с зеркальными фасадами, который визуально расширяет пространство и решает вопрос хранения без лишней мебели.
-Кухня оборудована функциональным гарнитуром с достаточным количеством шкафов и удобной рабочей зоной. Фартук облицован плиткой, установлены плита и вытяжка, у окна предусмотрено место для обеденной группы — всё организовано компактно и логично.
-Санузел и ванная отделаны плиткой, сантехника в рабочем состоянии, установлена ванна и раковина с тумбой. Туалет оформлен декоративными панелями, что добавляет аккуратности интерьеру.
-Частично вам останется мебель, что значительно упростит процесс переезда.
-Кирпичный 5-этажный дом 1967 года постройки. Кирпичные дома ценят за три вещи: комфортный микроклимат в любое время года, хорошую звукоизоляцию и долговечность конструкции. Этот дом — именно такой формат спокойного, проверенного временем жилья.
-Тихий, уютный двор с парковочными местами.
-В шаговой доступности находятся учебные заведения, рынок, медицинский колледж — повседневные задачи решаются без лишних поездок.
-Рядом остановка общественного транспорта, что позволяет удобно добираться в разные районы города. В нескольких километрах расположены железнодорожная станция и автовокзал — удобно как для рабочих поездок, так и для путешествий.
❤️Это квартира с тёплой атмосферой и понятной планировкой, где всё уже организовано для жизни, а при желании обновление можно делать постепенно, без спешки и серьёзных вложений.
❤️ Ищете выгодную недвижимость или хотите продать свою? Мы решим это для Вас с заботой и профессионализмом:
- Купить квартиру или дом в Минске и области
- Продать недвижимость по выгодной цене
- Оформить ипотеку, семейный капитал или кредит на покупку недвижимости
- Помочь с инвестициями в недвижимость
- Подобрать дизайнерский ремонт или перепланировку
- Выбрать лучший банк для выгодного кредита и лизинга
* Напишите нам в удобный мессенджер - Viber, Telegram или WhatsApp, и мы ответим на все вопросы!
❤️ «Моя 7Я» решит это, как для своей семьи: с любовью, заботой и желаемым результатом!
Агентство недвижимости ООО «Центр международной недвижимости Моя 7Я» | УНП 193750826 | Лицензия: № 02240/484 выдана МЮ РБ 18.05.2024 г. | Страховое свидетельство БР 0005017
Параметры объекта
- Количество комнат
4
- Раздельных комнат
3
- Площадь общая
56.7 м²
- Площадь жилая
44.9 м²
- Площадь кухни
5.5 м²
- Год постройки
1967
- Этаж / этажность
4 / 5
- Тип дома
Кирпичный
- Балкон
Балкон
- Ремонт
Нормальный
- Санузел
Раздельный
- Собственность
Частная
- Условия продажи
Чистая продажа
- Номер договора
33/3 от 11.02.2026
Екатерина Гончарик
Агент по недвижимости
Примечание
Местоположение
- Область
- Район
- Населенный пункт
- Улица
- Номер дома
57
- Направление
Слуцкое, 90 км от МКАД
- Координаты
53.0126, 27.5388
