В продаже Сталинка в самом центре Минска и на главном проспекте столицы в 1 минуте от ст. метро.
762 966 р.
9 639 р.≈ 3 411 $ за м²
- г. Минскул. Козлова, 2
- Площадь Победы
- 1 минута
- На карте
Общая
Жилая
Кухня
Этаж
Описание
В продаже Сталинка в самом центре Минска и на главном проспекте столицы в 1 минуте от ст. метро «Площадь Победы»
Квартира подоёдет для тех, кто готов воплотить самые смелые идеи и создать интерьер своей мечты!
✔️ Характеристики квартиры
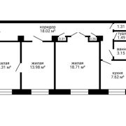
► Общая площадь — 79,16 м2
► Жилая — 47 м2
► Кухня — 7,62 м2
► Этаж — 2 из 5
► Материал стен — кирпич
► Санузел — раздельный (ванная 3,15 м2, туалет 1,49 м2)
► Есть кладовка
Квартира светлая, тёплая, аккуратная.
Кирпичные стены создают отличный микроклимат — зимой тепло, летом прохладно.
- Установленные деревянные стеклопакеты обеспечивают отличную шумоизоляцию и открывают великолепный вид из окна, которым вы сможете любоваться каждый день.
- Наличие складского помещения в подвале – это отличная возможность хранить сезонные вещи и другие необходимые предметы.
- Квартира расположена на 2 этаже 5-этажного дома 1959 года постройки в историческом фонде. Толстые кирпичные стены обеспечат отличную тепло- и шумоизоляцию, а высокие потолки создадут ощущение простора и воздуха.
- Порядочные соседи – залог спокойной и комфортной жизни.
- Уютный тихий двор станет любимым местом для прогулок и отдыха на свежем воздухе. Ваши дети будут с удовольствием проводить время на детских площадках, расположенных недалеко от дома.
- Достаточное количество парковочных мест во дворе.
- Рядом с домом вы найдете все необходимое: продуктовые магазины, магазины бытовой химии, аптеки, стоматологию, кафе, школы, детские сады, кинотеатр и многое другое. Вдоль проспекта Независимости расположено множество важных объектов инфраструктуры, что делает это место максимально комфортным для жизни.
- Остановка общественного транспорта находится всего в минуте ходьбы от дома, а станция метро «Площадь Победы» – в двух минутах.
- В нескольких минутах ходьбы от дома расположены Парк им. Горького, парк им. Янки Купалы, сквер Марата Казея и Симона Боливара – идеальные места для прогулок и отдыха на природе.
С огромным удовольствием расскажем о квартире подробнее и покажем в удобное для Вас время!
Напишите нам в удобный для Вас мессенджер:
Viber | Telegram | WhatsApp
Ответим на Ваши вопросы, предоставим всю необходимую информацию.
Параметры объекта
- Количество комнат
3
- Раздельных комнат
3
- Площадь общая
79.16 м²
- Площадь жилая
47 м²
- Площадь кухни
7.62 м²
- Год постройки
1959
- Этаж / этажность
2 / 5
- Тип дома
Кирпичный
- Ремонт
Удовлетворительный
- Высота потолков
3 м
- Санузел
Раздельный
- Собственность
Частная
- Условия продажи
Чистая продажа
- Номер договора
372/1 от 19.03.2026
Примечание
Местоположение
- Область
- Населенный пункт
- Улица
- Номер дома
2
- Район города
- Микрорайон
- Координаты
53.9094, 27.5795
