Купить 2-комнатную квартиру, г. Минск, ул. Кунцевщина, 4
302 885 р.
6 143 р.≈ 2 231 $ за м²
- г. Минскул. Кунцевщина, 4
- Каменная горка
- 3 минуты
- На карте
Общая
Жилая
Кухня
Этаж
Описание
Универсальный объект на ул. Кунцевщина, 4: Ваш идеальный дом и высоколиквидный актив! Эта двухкомнатная квартира — редкое сочетание комфорта для собственного проживания и флагманского потенциала для сдачи в аренду. Расположенная в одной из самых востребованных локаций Минска, она гарантирует высокое качество жизни и стабильный инвестиционный доход.
1. Почему это отличный выбор для жизни?
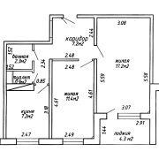
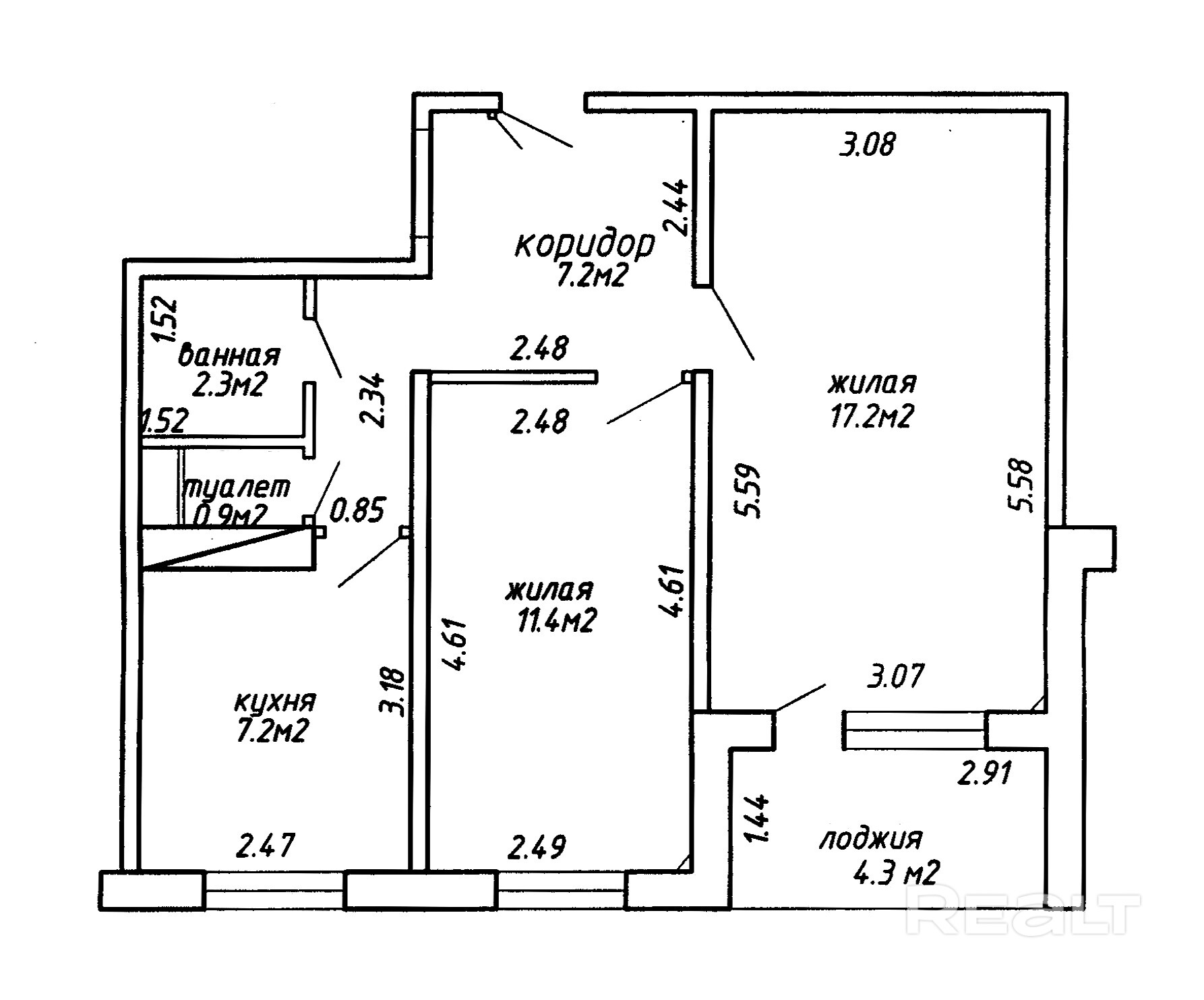
- Продуманная планировка: Квартира обладает практичной планировкой с раздельными жилыми комнатами (17,1 м2 и 11,4 м2). Утеплённая лоджия с оборудованными шкафами и наличие кладовой позволяют организовать удобные зоны хранения.
- Техническая готовность: Состояние объекта позволяет заехать и жить сразу после покупки. В квартире сделан ремонт. Во всей квартире (включая окна на лоджии) установлены двойные стеклопакеты (профиль ПВХ), уложен ламинат, заменены все межкомнатные двери, остаётся встроенная кухня с техникой. На кухне, в ванной и туалете уложена современная плитка, установлен шкаф-купе в коридоре, проведён высокоскоростной интернет, лоджия застеклена и утеплена, имеется входная металлическая дверь,
- Комфорт в деталях: В вашем распоряжении аккуратный подъезд, тамбур на две квартиры и адекватные, порядочные соседи. Окна, выходящие на запад, обеспечивают обилие солнечного света и приятную атмосферу.
2. Почему это «золотая жила» для инвестора?
- Локация №1: Дом находится всего в 2–5 минутах пешком от станции метро «Каменная Горка». Близость к метро — главный фактор, обеспечивающий ажиотажный спрос у арендаторов и минимальный простой объекта.
- Инфраструктурный центр: прямо через дорогу расположен крупнейший ТЦ «Green City», гипермаркеты «Материк» и «Алми». Наличие рядом банков, кофеен, фитнес-центров и медицинских центров делает квартиру максимально привлекательной для долгосрочной аренды.
- Готовый доход: благодаря востребованности района и 100% готовности объекта Вы сможете получать прибыль практически сразу после приобретения.
3. Инфраструктура и окружение для любого сценария:
- Для семей: В непосредственной близости находятся гимназии №39 и №4, несколько школ (№201, 185) и более 8 детских садов. Детская и взрослая поликлиника расположена прямо возле дома.
- Для отдыха: В шаговой доступности - ТЦ Green City, в котором можно совместить шопинг, еду и развлечения для всей семьи, парк им. Уго Чавеса, оздоровительный комплекс Мандарин.
- Для автомобилистов: Во дворе достаточно парковочных мест, а выезд на МКАД в обе стороны занимает всего 3 минуты.
При необходимости окажем квалифицированную помощь в продаже вашей недвижимости для приобретения этой квартиры!
Более подробная информация по телефону.
Нет возможности позвонить – пишите (Viber, Whatsapp, Telegram, МАХ, email: 1992841@list.ru).
Параметры объекта
- Количество комнат
2
- Раздельных комнат
2
- Площадь общая
49.3 м²
- Площадь жилая
28.6 м²
- Площадь кухни
7.2 м²
- Площадь балконов
4.3 м²
- Год постройки
1989
- Этаж / этажность
5 / 9
- Тип дома
Панельный
- Балкон
Лоджия
- Ремонт
Отличный
- Высота потолков
2.5 м
- Санузел
Раздельный
- Возможен торг
Да
- Собственность
Частная
- Условия продажи
Подбираются варианты
- Номер договора
184/1 от 30.03.2026
- Вид из окон
На улицу
Примечание
Местоположение
- Область
- Населенный пункт
- Улица
- Номер дома
4
- Район города
- Микрорайон
- Координаты
53.9106, 27.4378
