Эксклюзивное предложение 3к с ремонтом!
464 355 р.
5 878 р.≈ 2 152 $ за м²
Чистая продажа
Следить за ценой
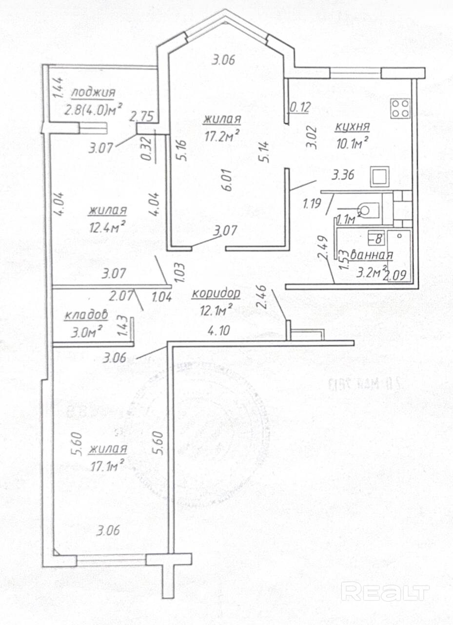
79 м²
Общая
46.7 м²
Жилая
10.1 м²
Кухня
3 из 9
Этаж
2 часа назадID 4090211
Описание
🏡 3-комнатная квартира с ремонтом и полной комплектацией
📍 Микрорайон Великий лес-5
Отличный вариант для комфортной жизни — квартира полностью готова к заселению без дополнительных вложений.
📐 Основные характеристики:
- Этаж: 3 из 9
- Общая площадь указана по СНБ
- Продуманная планировка для удобства и уюта
- Состояние: заезжай и живи
🍽 Кухня и гостиная:
- Просторная кухня — 10.1 м2
- Гостиная — 17.2 м2, объединена с кухней
- Удобное зонирование пространства
- Профессиональная газовая плита ARDO газовая плита
🛏 Комнаты:
- Спальня — 12.4 м2 с выходом на лоджию
- Детская — 17.1 м2
- Кладовая переоборудована под рабочее место (идеально для удалённой работы)
🌿 Дополнительно:
- Лоджия остеклена и утеплена
- Раздельный санузел
- Душевая кабина с функцией хамам
- Стеклопакеты
- Встроенная мебель
- Остаётся практически вся мебель и техника (есть исключения)
🏫 Инфраструктура:
- Школы: №93, №94
- Детские сады: №46, №588
- Магазины: Евроопт, Корона, Санта, Соседи, Копеечка
- Метро — ~17 минут на транспорте
- Отличное транспортное сообщение
💡 Преимущества:
✔ Полная комплектация
✔ Удобная планировка
✔ Готова к проживанию
✔ Развитый район
Параметры объекта
- Количество комнат
3
- Раздельных комнат
3
- Площадь общая
79 м²
- Площадь жилая
46.7 м²
- Площадь кухни
10.1 м²
- Год постройки
2012
- Этаж / этажность
3 / 9
- Тип дома
Панельный
- Балкон
Лоджия
- Ремонт
Отличный
- Высота потолков
2.5 м
- Мебель
Есть
- Санузел
Раздельный
- Стоянка автомобиля
Есть
- Собственность
Частная
- Условия продажи
Чистая продажа
- Номер договора
419/1 от 29.03.2026
Удобства
Телефонная сеть
Интернет
Лифт
Видеодомофон
Видеонаблюдение
Примечание
🏡 3-комнатная квартира с ремонтом и полной комплектацией
Местоположение
- Область
- Населенный пункт
- Улица
- Номер дома
11
- Район города
- Микрорайон
- Координаты
53.9418, 27.7256


