3х комнатная квартира в кирпичном доме, 10 минут до метро.
290 199 р.
4 325 р.≈ 1 565 $ за м²
- г. Минскул. Уборевича, 58
- Могилевская
- 10 минут
- На карте
Общая
Жилая
Кухня
Этаж
Описание
3х комнатная квартира в кирпичном доме, 10 минут до метроМогилёвская, Автозаводская.
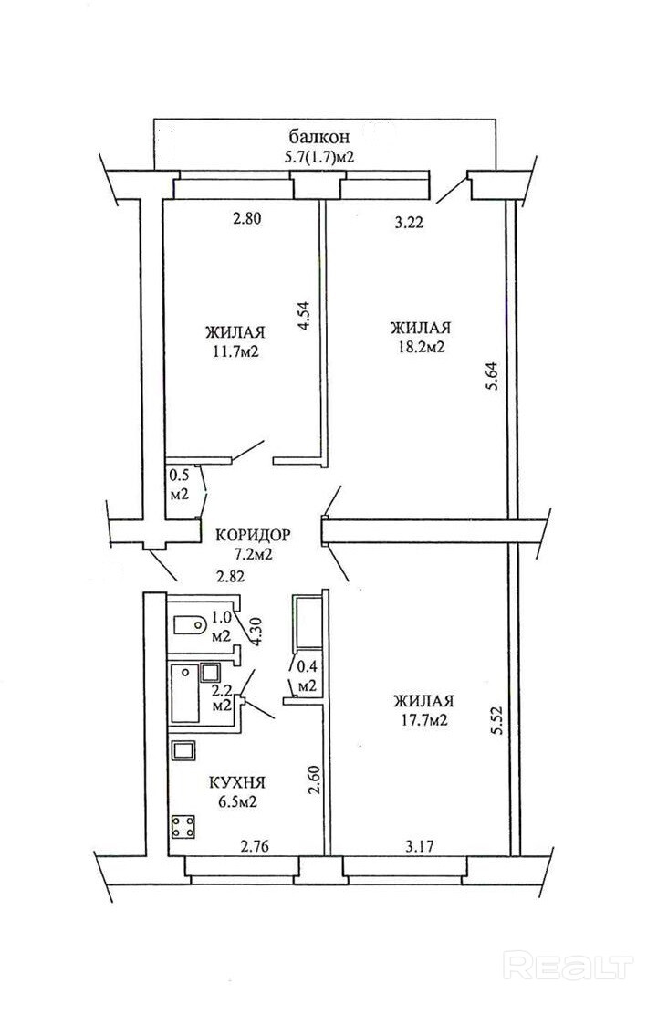
Планировка с хорошим жилым метражом: все комнаты изолированы 18,2, 17,7, 11,7 м2, большой балкон, кухня, раздельный сан. узел Окна выходят на две стороны, отличная тепло и шумоизоляция. В квартире остаётся встроенная кухня, полностью укомплектованная бытовой техникой. Газ. варочная поверхность, духовка, вытяжка, холодильник, стиральная машина. Встроенные шкафы во всех помещениях. Дом после кап. ремонта, заменены коммуникации. Удобное расположение для проживания семьи. Отличная сформированная инфраструктура и транспортное сообщение. Авт.16,21,102,88с,98с,108,148с, 164,51. Трол.16,26,49. Маршрутки 1056, 1212. метро Могилёвская, Автозаводская. Детские учреждения: СШ№43,117, Д/С№305, 328,175 Сетевые магазины, Рынок, поликлиника Прекраснейшие места для отдыха и занятий спортом. Чижовка Арена, Парк, Экотропа, Зоопарк, Дельфинарий.
Чистая продажа, ключи в день сделки!
Будем рады пригласить вас на просмотр в удобное для вас время. Поможем выгодно продать вашу недвижимость для покупки этой квартиры.
Параметры объекта
- Количество комнат
3
- Раздельных комнат
3
- Площадь общая
67.1 м²
- Площадь жилая
47.6 м²
- Площадь кухни
6.5 м²
- Год постройки
1970
- Этаж / этажность
2 / 5
- Тип дома
Кирпичный
- Планировка
Брежневка
- Балкон
Балкон
- Ремонт
Хороший
- Высота потолков
2.5 м
- Санузел
Раздельный
- Собственность
Частная
- Условия продажи
Чистая продажа
- Номер договора
472/1 от 09.04.2026
Примечание
Местоположение
- Область
- Населенный пункт
- Улица
- Номер дома
58
- Район города
- Микрорайон
- Координаты
53.8429, 27.6491
