СРОЧНАЯ ПРОДАЖА В ЛЕВАДЕ!
388 988 р.
8 922 р.≈ 3 140 $ за м²
Общая
Жилая
Этаж
Описание
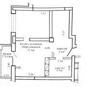
Евродвушка с кладовой в ЖК Левада
г Минск ул. Нововиленская 53, 9 этаж
Площади:
общая по СНБ 43,6 м2, кладовая 5,7 м2 на 0 этаже
Квартира:
изолированная спальня, кухня гостиная, гардеробная, качественный современный ремонт, кондиционер, диван по индивидуальному заказу премиального качества Arte Studio, матрас Serta Rio Grande, качественная входная дверь с шумоизоляцией на гарантии, продажа с мебелью. Окна выходят на юг.
ЖК и двор:
комфорт класс, видеонаблюдение, шлагбаум, закрытые дворы без машин, детские и зоны отдыха, современный подъезд.
Локация:
парк Победы, Комсомольское озеро, Дрозды, велодорожки, центр рядом, удобный выезд на МКАД.
Условия:
чистая продажа, помощь с кредитом, полное сопровождение сделки.
ООО «Жилой проспект»
УНП: 193890816
Договор 17/1 от 20.01.2025
Лицензия Министерства юстиции Республики Беларусь № 02240/518 от 15.08.2025г.
Параметры объекта
- Количество комнат
2
- Раздельных комнат
2
- Площадь общая
43.6 м²
- Площадь жилая
31.1 м²
- Год постройки
2024
- Этаж / этажность
9 / 9
- Тип дома
Каркасно-блочный
- Балкон
Лоджия
- Ремонт
Отличный
- Высота потолков
2.7 м
- Санузел
Совмещенный
- Собственность
Частная
- Условия продажи
Чистая продажа
- Номер договора
17/1 от 19.01.2026
Екатерина Жук
Агент по недвижимости
Примечание
Местоположение
- Область
- Населенный пункт
- Улица
- Номер дома
53
- Район города
- Микрорайон
- Координаты
53.9372, 27.5303
