Продажа 1-комнатной квартиры улучшенной планировки в центре г. Слуцка
107 133 р.
2 918 р.≈ 1 035 $ за м²
Общая
Жилая
Кухня
Этаж
Описание
Продаётся 1-комнатная квартира улучшенной планировки на 5/5 этаже кирпичного дома в центре г. Слуцка.
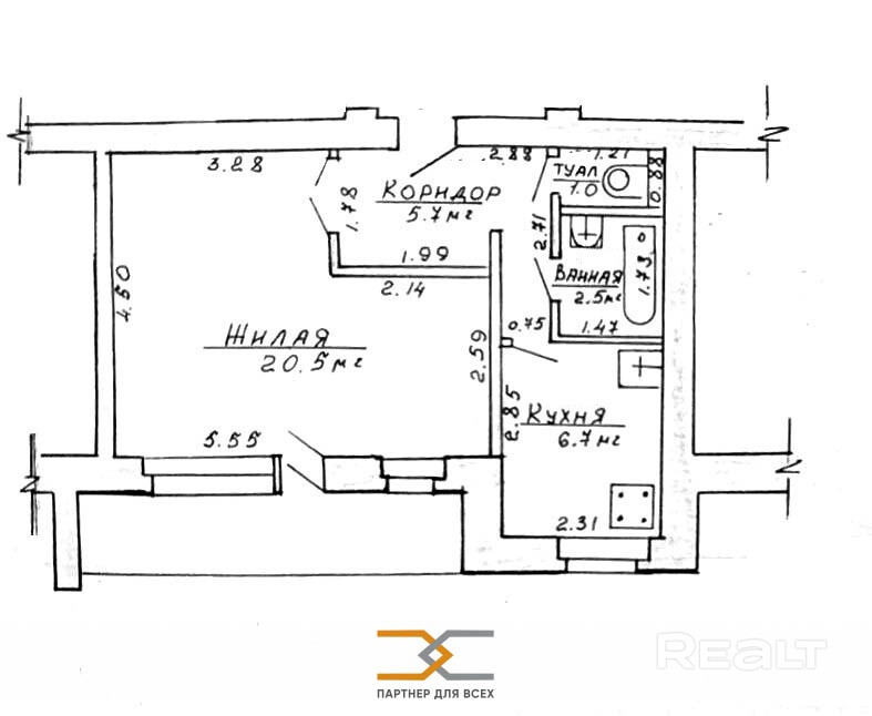
Дом 1983 гп, с новой двускатной крышей. В квартире выполнен современный ремонт: окна и лоджия - ПВХ, пол - линолеум, встроенная кухня остаётся покупателю, в с/у - керамогранит, натяжной потолок по всей квартире кроме коридора.
Общая площадь составляет 36,7м2, жилая 20,5м2 и кухня 6,7м2, просторного коридора 5,7м2 со встроенным шкафом-купе и раздельным с/у. На большой лоджии оборудовано место для отдыха.
Последний этаж и кирпичный дом даст вам тишину от соседей.
Кондиционер обеспечит вам прохладу летом.
Спешите стать обладателем современной евродвушки!
Вся инфраструктура в шаговой доступности: 2 д/с, школы, магазины, почта, спорткомплекс Дельфин.
Рядом остановки городских автобусов.
Отличный вариант для молодой семьи или под сдачу в аренду.
ООО «Партнер для всех», УНП 690665135, лицензия Министерства юстиции Республики Беларусь № 02240/321 от 02.12.2016, договор на оказание риэлтерских услуг № 22/5 от 14.04.2026г.
Параметры объекта
- Количество комнат
1
- Площадь общая
36.7 м²
- Площадь жилая
20.5 м²
- Площадь кухни
6.7 м²
- Год постройки
1983
- Этаж / этажность
5 / 5
- Тип дома
Кирпичный
- Балкон
Лоджия
- Ремонт
Хороший
- Высота потолков
2.5 м
- Санузел
Раздельный
- Возможен торг
Да
- Собственность
Частная
- Условия продажи
Чистая продажа
- Номер договора
22/5 от 13.04.2026
Елена Жарикова
Агент по недвижимости
Примечание
Местоположение
- Область
- Район
- Населенный пункт
- Улица
- Номер дома
5
- Направление
Слуцкое, 90 км от МКАД
- Координаты
53.0315, 27.5636
