Скачать приложение Realt
Скачать

Удобная планировка, панорамный вид с окон, лифт спускается в подземный паркинг к машиноместу.

552 396 р.

195 000 $

5 266 р. 1 859 $ за м²

Чистая продажа
Следить за ценой
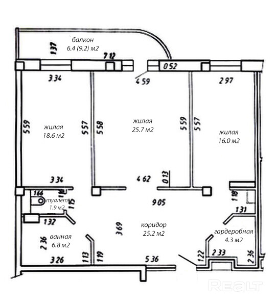
104.9 м²

Общая

44.3 м²

Жилая

16.4 м²

Кухня

13 из 14

Этаж

час назадID 4099444
pdf
Обзор по новостройкам Минска и пригорода
Цены и наличие квартир, условия покупки и оплаты

Описание

Есть машиноместо в подземном паркинге, куда вас комфортно доставит лифт. В доме два лифта импортного производителя.

Свежий ремонт в квартире, в которой практически не проживали.

Панорамный, просторный   вид на город с окон.

Неоспоримый плюс в квартире - гардеробная.

Обустроенная территория с большой площадью озеленения, игровыми зонами и достаточным количеством парковочных мест.

- По периметру дома установлена система видеонаблюдения

- Обслуживает дом товарищество собственников, а это значит к

Вашим услугам свой председатель, сантехник, электрик, бухгалтер, которые по первому звонку помогут решить все вопросы, которые находятся в их компетенции.

- 2014 год постройки - это новый дом, но в то же время, все шумные ремонтные работы уже завершены.

Советский район города Минска, это один из зеленых и престижных районов города.

Общая площадь указана по СНБ.

Лицензия: №02240/362 МЮ РБ, 31.07.2018

Параметры объекта

  • Количество комнат

    2

  • Раздельных комнат

    2

  • Площадь общая

    104.9 м²

  • Площадь жилая

    44.3 м²

  • Площадь кухни

    16.4 м²

  • Год постройки

    2014

  • Этаж / этажность

    13 / 14

  • Тип дома

    Каркасно-блочный

  • Балкон

    Балкон

  • Ремонт

    Отличный

  • Высота потолков

    2.7 м

  • Мебель

    Есть

  • Санузел

    Раздельный

  • Собственность

    Частная

  • Условия продажи

    Чистая продажа

  • Номер договора

    474/1 от 13.04.2026

Удобства

Интернет

Лифт

Примечание

Удобная планировка, панорамный вид с окон, лифт спускается в подземный паркинг к машиноместу.

Местоположение