Двухуровневая квартира с участком практически в центре Минска
419 447 р.
4 115 р.≈ 1 452 $ за м²
- г. Минскул. Шабловского, 8
- Неморшанский сад (2024)
- На карте
Общая
Жилая
Кухня
Этаж
Описание
Двухуровневая квартира с участком практически в центре Минска
Продается просторная двухуровневая квартира с отдельным входом и собственным участком – редкий формат, который сочетает удобство городской квартиры и преимущества частного дома.
Это полноценная квартира, расположенная в блокированном жилом доме (полдома), с полной автономией и приватностью. Отличный вариант для тех, кто хочет больше пространства и уюта, чем в обычной квартире, но без переезда за город.
Объект находится в зоне сохранения усадебной застройки – тихий, малонаселенный район рядом с центром города.
Дом реконструирован в 2013 году: заменены все ключевые элементы – от фундамента до крыши и коммуникаций.
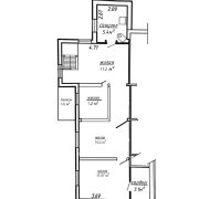
Функциональная планировка:
– 1 этаж: просторная кухня-гостиная, санузел, гардеробная, прихожая
– 2 этаж: три спальни, санузел, гардеробная
Квартира с современным ремонтом и техникой – полностью готова к проживанию.
Важное преимущество – индивидуальное отопление: вы сами регулируете температуру в квартире в любое время года, создавая комфортный микроклимат и контролируя расходы.
Главная особенность – собственный участок:
– ухоженная зеленая зона со взрослыми растениями
– терраса с атмосферой «итальянского дворика» и зоной барбекю
– хозблок ~20 м2 (можно сделать баню или гостевой дом)
– возможность выращивать зелень и ягоды прямо у себя дома
Участок полностью изолирован и скрыт от посторонних – максимум уюта и приватности.
Дополнительно:
– 2 парковочных места во дворе
– возможность зарядки электромобиля
– отдельные коммуникации, отсутствие общих зон и полная независимость от соседей
Локация:
– 10 минут пешком до метро
– удобное транспортное сообщение
– 15–20 минут до центра и ЖД вокзала
– рядом школы, детские сады, магазины
– в пешей доступности парк с озером в Солнечной долине
Вы получаете комфорт квартиры с уровнем приватности и уюта, сравнимым с частным домом – редкое предложение для Минска.
Возможна покупка в кредит!
Поможем быстро продать вашу квартиру, чтобы купить эту.
Звоните прямо сейчас, покажем в удобное для вас время.
ООО «ЭТАЖИ юнайтед»
УНП: 193673318
Договор 840/1 от 16.04.2026
Лицензия на оказание риэлтерских услуг №02240/460 МЮ РБ от 03.04.2023
Ознакомиться с политикой обработки персональных данных ООО «ЭТАЖИ юнайтед» можно здесь.
Совершая звонок, вы даете согласие на обработку персональных данных.
Параметры объекта
- Количество комнат
5
- Раздельных комнат
4
- Площадь общая
101.9 м²
- Площадь жилая
66.5 м²
- Площадь кухни
24.9 м²
- Год постройки
2013
- Этаж / этажность
2 / 2
- Число уровней
2
- Тип дома
Силикатные блоки
- Балкон
Балкон
- Ремонт
Евроремонт
- Высота потолков
2.7 м
- Мебель
Есть
- Санузел
2 и более
- Собственность
Частная
- Условия продажи
Чистая продажа
- Номер договора
840/1 от 15.04.2026
Удобства
Интернет
Рекламодатель - физическое лицо
ООО "ЭТАЖИ юнайтед"
Агентство недвижимости
УНП: 193673318 Лицензия: 48230000077615 МЮ РБ, 02.04.2023
Анастасия Биянова
Агент по недвижимости
Примечание
Местоположение
- Область
- Населенный пункт
- Улица
- Номер дома
8
- Район города
- Микрорайон
- Координаты
53.8536, 27.5235
