Скачать приложение Realt
Скачать

Просторная 2-х комнатная квартира в зеленом районе!

381 426 р.

135 700 $

5 650 р. 2 010 $ за м²

Чистая продажа
Следить за ценой
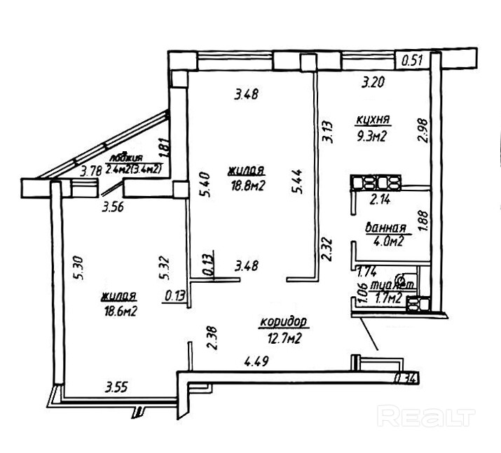
67.5 м²

Общая

37.4 м²

Жилая

9.3 м²

Кухня

5 из 25

Этаж

40 минут назадID 4103294
pdf
Обзор по новостройкам Минска и пригорода
Цены и наличие квартир, условия покупки и оплаты

Описание

Просторная 2-х комнатная квартира в зеленом районе!

Монолитно-каркасный дом 2014 года постройки. Комфортный 5-й этаж. Высокие потолки – 2.76 м. 

Отличная планировка: 2 раздельные комнаты, просторная кухня, раздельный санузел, застекленная лоджия. Квартира в нормальном, жилом состоянии.

Установлена система умный домофон, видеонаблюдение.

Вся необходимая инфраструктура в шаговой доступности: школа, детский сад, аптека, магазины, почта, рядом учебно-развлекательный горнолыжный центр «Солнечная долина». 

В шаговой доступности прекрасная парковая зона. Облагорожена, с зонами для кемпинга.

Сосновый бор и водохранилище «Лошица».

До остановок общественного транспорта пару минут пешком, удобный выезд на МКАД. Станция метро «Неморшанский сад» в 15 минутах ходьбы.

Общая площадь указана по СНБ.

Лицензия: 02240/446 МЮ РБ, 11.07.2022

Параметры объекта

  • Количество комнат

    2

  • Раздельных комнат

    2

  • Площадь общая

    67.5 м²

  • Площадь жилая

    37.4 м²

  • Площадь кухни

    9.3 м²

  • Год постройки

    2014

  • Этаж / этажность

    5 / 25

  • Тип дома

    Монолитный

  • Балкон

    Лоджия

  • Ремонт

    Хороший

  • Высота потолков

    2.7 м

  • Мебель

    Есть

  • Санузел

    Раздельный

  • Собственность

    Частная

  • Условия продажи

    Чистая продажа

  • Номер договора

    46/1 от 21.01.2026

Удобства

Интернет

Лифт

Примечание

Просторная 2-х комнатная квартира в зеленом районе!

Местоположение