Скачать приложение Realt
Скачать

Готовая 2к квартира у метро Восток и Слепянской водной системы

278 314 р.

98 900 $

6 723 р. 2 389 $ за м²

Чистая продажа
Следить за ценой
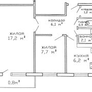
41.4 м²

Общая

25 м²

Жилая

6.2 м²

Кухня

3 из 5

Этаж

2 часа назадID 4108828
pdf
Обзор по новостройкам Минска и пригорода
Цены и наличие квартир, условия покупки и оплаты

Описание

Идеальный вариант для тех, кто ценит природу и комфорт.
41.4 / 25 / 6.2 кв.м.
Полная комплектация мебелью.
Парк и Слепянское водохранилище — прямо через дорогу!
10 минут пешком до метро Восток и Dana Mall.
Рядом школы №115, 137 и детсады.

Продается уютная 2-комнатная квартира по адресу: ул. Калиновского, 73. Полностью готова к проживанию — заезжайте и живите без лишних забот!
Главные фишки:
Локация-мечта: Прямо через дорогу — Слепянское водохранилище. Идеальное место для утренних пробежек, вечерних прогулок и отдыха с любимым питомцем.
Все включено: Квартира продается с мебелью. Вам не нужно думать о ремонте и покупке шкафов.
Инфраструктура на 10/10: В шаговой доступности сады и школы (№115, №137), магазины и ТЦ.
Транспорт: Всего 10 минут пешком до ст. м. «Восток» и топового ТЦ «Дана Молл».

Частное предприятие «Агентство АС недвижимости», УНП 193816797,  лицензия №02240/495  от  08.01.2025.  Договор №150/1 от 28.04.2026

Параметры объекта

  • Количество комнат

    2

  • Раздельных комнат

    2

  • Площадь общая

    41.4 м²

  • Площадь жилая

    25 м²

  • Площадь кухни

    6.2 м²

  • Год постройки

    1966

  • Год капитального ремонта

    2015

  • Этаж / этажность

    3 / 5

  • Тип дома

    Панельный

  • Балкон

    Балкон

  • Ремонт

    Евроремонт

  • Мебель

    Есть

  • Санузел

    Раздельный

  • Стоянка автомобиля

    Есть

  • Собственность

    Частная

  • Условия продажи

    Чистая продажа

  • Номер договора

    150/1 от 27.04.2026

  • Вид из окон

    Во двор

Удобства

Телефонная сеть

Примечание

Идеальный вариант для тех, кто ценит природу и комфорт. 41.4 / 25 / 6.2 кв.м. Полная комплектация мебелью. Парк и Слепянское водохранилище — прямо через дорогу! 10 минут пешком до метро Восток и Dana Mall. Рядом школы №115, 137 и детсады.

Местоположение