Продается офис, г. Минск, ул. Притыцкого, 156
от 4 702 р./м²
Продажа
Следить за ценой
- г. Минскул. Притыцкого, 156
- Каменная горка
- 5 минут
- На карте
Офис
Тип
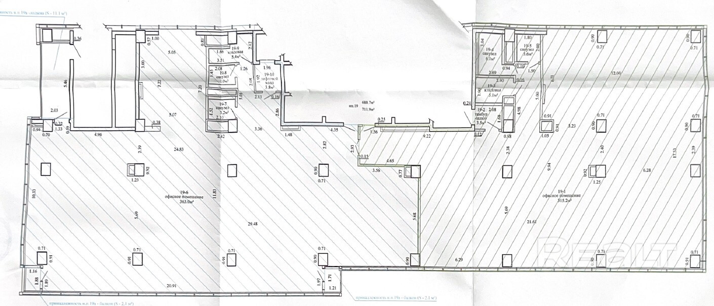
334 - 712 м²
Площадь
12 из 22
Этаж
14.04.2026ID 3708999
Описание
Возможна продажа в лизинг, первоначальный взнос от 10%, ежемесячный платеж без НДС
Параметры объекта
- Тип объекта
Офис
- Площадь общая
334 - 712 м²
- Этаж / этажность
12 / 22
- Год постройки
2015
- Класс
A
- Раздельных помещений
2
- Материал стен
Монолитный
- Высота потолков
2.7 м
- Ремонт
Нормальный
- Отопление
Есть
- Электроснабжение
Есть
- Естественное освещение
Есть
- Вода
Есть
- Санузел
2 санузла
- Парковка
Есть
- Принадлежность объекта
Частная
- НДС
НДС не включен
- Расположение
В бизнес центре
- Юридический адрес
Да
Оснащение
Кондиционер
Охрана
Оживленное место
Интернет
Мебель
Продавец
Сергей
Контактное лицо
Примечание
Продается офисное помещение от 333 до 711,9 кв.м. (333,5 и 378,4 кв.м.) в БЦ "Green City". Современные, комфортабельные, большие офисы с естественным освещением, панорамными окнами, санузлами, кондиционированием, охраной, 24/7. Установлены быстромонтируемые перегородки (зонирование или формат open space). В шаговой доступности метро, остановки общественного транспорта, торговый центр, фудкорты, магазины, кафе, банк, банкоматы, фитнес-центр, салон красоты, парковка и паркинг. Возможен торг.
Местоположение
Каменная горка5 минут
- Область
- Населенный пункт
- Улица
- Номер дома
156
- Район города
- Микрорайон
- Координаты
53.908505435, 27.429878135
