Продается современный офис по ул. Аэродромной 125 рядом с Минск Миром.
294 611 р.
- г. Минскул. Аэродромная, 125
- Ковальская Слобода
- На карте
Тип
Площадь
Этаж
Описание
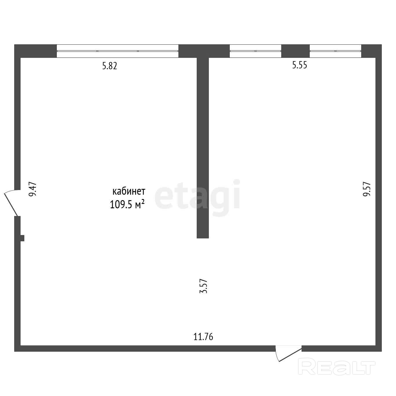
Продается современный офис площадью 109,5 м2 с ремонтом на 4 этаже по ул. Аэродромной 125 (пересечение улиц Аэродромная и Володько) напротив Минск Мира, квартал «Эмиратс». На территории квартала с 9 до 23 работает торговый центр «Гиппо». Рядом лаунж-бар с элитными сортами чая и авторскими коктейлями. Есть 2 территории воркаута с турниками и тренажёрами на различные группы мышц для поддержания хорошей физической формы. В соседнем квартале откроются 2 крупнейших бизнес-объекта Беларуси — Международный финансовый центр и ТРЦ Avia Mall. В 10 минутах ходьбы станции метро «Ковальская Слобода» и «Аэродромная».
Технические характеристики:
Здание 2003 года постройки, 4-хэтажное, стены из кирпича и керамзитобетонных блоков, что обеспечивает отличную тепло- и шумоизоляцию, перекрытия железобетонные плиты. Пол – плитка и ламинат, потолок подвесной, входная дверь металлическая, на стенах светлые обои. Пространство разделено на 5 раздельных помещений перегородками ПВХ + стекло, где могут с удобством расположится ваши сотрудники. Есть 2 входа, что может быть удобно. Рядом бесплатная парковка.
Помещение подойдет для офиса, сферы услуг. Возможна продажа юридическому лицу с НДС. На данный момент офис сдается в аренду.
Мебель остается будущим владельцам по согласованию с арендодателем!
Коммуникации:
Все коммуникации центральные (электричество, водоснабжение, канализация, отопление). Комфортные благоустроенные санузлы. Установлена центральная пожарная сигнализация, кондиционеры (по 4 шт. на объект). Ведется видеонаблюдение, доступ 24/7. Проведен городской телефон и высокоскоростной интернет А1.
Инфраструктура:
Здание расположено в динамичном районе с развитой инфраструктурой и активным транспортным сообщением. В шаговой доступности остановка общественного транспорта, банки, магазины, медцетр «Кордис», автоцетр Lada, СТО, автомойки, станция зарядки автомобилей, автозаправка, Белгосстрах, спортивный комплекс БГПУ, государственные лечебные учреждения.
Отличная локация для бизнеса! Все для вашего удобства и комфорта!
Звоните и записывайтесь на просмотр офиса прямо сейчас!!!
Без торга!!!
Продадим вашу недвижимость, чтобы купить эту!
ООО «ЭТАЖИ юнайтед»
УНП: 193673318
Договор 1101/1 от 27.06.2025г.
Лицензия на оказание риэлтерских услуг №02240/460 МЮ РБ от 03.04.2023
Параметры объекта
- Тип объекта
Офис
- Площадь общая
109.50 м²
- Этаж / этажность
4 / 4
- Год постройки
2003
- Раздельных помещений
5
- Материал стен
Кирпичный
- Ремонт
Хороший
- Отопление
Есть
- Электроснабжение
Есть
- Естественное освещение
Есть
- Вода
Есть
- Санузел
Есть
- Парковка
Есть
- Принадлежность объекта
Частная
- НДС
НДС не включен
- Расположение
В бизнес центре
- Аукцион
Да
- Номер договора
1101/1 от 26.06.2025
Оснащение
Охрана
Сигнализация
Видеонаблюдение
Оживленное место
Ирина Шульга
Агент по недвижимости
Примечание
Местоположение
- Область
- Населенный пункт
- Улица
- Номер дома
125
- Район города
- Микрорайон
- Координаты
53.8733, 27.558
