Купить офис, г. Минск, ул. Одоевского, 131
от 1 034 850 р.
от 2 015 р.≈ от 730 $ за м²
Продажа
Следить за ценой
- г. Минскул. Одоевского, 131
- Кунцевщина
- На карте
Офис
Тип
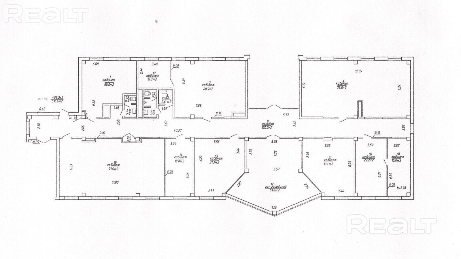
516.60 м²
Площадь
3 из 5
Этаж
24.12.2025ID 3954008
Параметры объекта
- Тип объекта
Офис
- Площадь общая
516.60 м²
- Этаж / этажность
3 / 5
- Год постройки
2005
- Класс
B
- Раздельных помещений
1 - 11
- Материал стен
Блочный
- Высота потолков
2.7 м
- Ремонт
Нормальный
- Отопление
Есть
- Электроснабжение
Есть
- Естественное освещение
Есть
- Вода
Есть
- Газ
Есть
- Санузел
2 санузла
- Количество телефонов
Больше пяти
- Парковка
Есть
- Принадлежность объекта
Частная
- НДС
НДС нет (0%)
- Расположение
В бизнес центре
- Юридический адрес
Да
Оснащение
Кондиционер
Охрана
Сигнализация
Видеонаблюдение
Интернет
Продавец
Ольга
Контактное лицо
Примечание
2005 года постройки Общая площадь здания – 2 819,4 м2 Площадь этажа - 516.6 м2 - Хороший ремонт - Система вентиляции - Система кондиционирования - Собственная газовая котельная - Прилегающая парковка - Телефоны, интернет - Охрана, видеонаблюдение - Отопление, канализация, горячая вода - Доступ 24/7 Приходите, смотрите и делайте свой выбор!
Местоположение
Кунцевщина15 минут
Спортивная15 минут
- Область
- Населенный пункт
- Улица
- Номер дома
131
- Район города
- Микрорайон
- Координаты
53.9002, 27.4672
