Коттедж-офис по ул. Некрасова 88.
1 096 173 р.
Тип
Площадь
Этаж
Описание
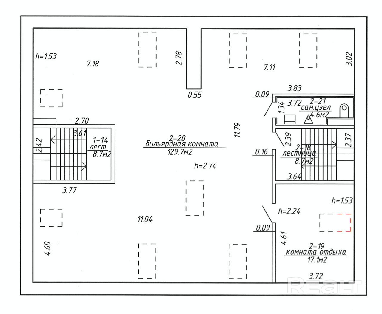
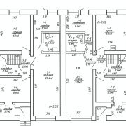
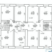
Продается коттедж-офис 464 м2. Готовое бизнес-пространство «под ключ» в перспективной локации.
Предлагаем уникальную возможность приобрести не просто здание, а готовую эффективную среду для работы вашей компании. Это идеальный вариант для IT-компании, проектного бюро, штаб-квартиры или креативного агентства, ценящих комфорт и приватность.
Ключевые преимущества объекта:
1. Готовая инфраструктура:
Планировка: Четкая кабинетная система на :65+ рабочих мест (из них 25 опен спейс).
Комфорт: Все кабинеты оборудованы системами кондиционирования.
Удобство: Три санузла.
Коммуникации: Отдельная комната для собраний и презентаций.
Интернет: к офису подведено оптоволокно.
2. Выгодные инвестиции:
Вы прекращаете зависеть от арендодателя и роста арендных ставок.
Ваш офис — это ликвидный актив, который со временем растет в цене.
Возможность создать корпоративный стиль и атмосферу, укрепляющую команду.
3. Перспективная локация и территория:
Спокойный, респектабельный район с развитой инфраструктурой.
В ближайшей перспективе — открытие станции метро в шаговой доступности, что многократно увеличит транспортную доступность и стоимость объекта.
Собственный участок 4 сотки позволяет организовать охраняемую парковку для сотрудников и гостей, а также создать зону для отдыха.
Это предложение для тех, кто думает о стабильности, имидже и будущем своего бизнеса. Объект полностью готов к въезду и началу работы.
Смотрите еще больше в нашем Telegram канале @kvadratnyjmetr
УП «Квадратный метр»
УНП: 190003285
Лицензия 02240/29_
от 17.02.2005, Министерство юстиции РБ
Договор 697/24 от 29.12.2025
Параметры объекта
- Тип объекта
Офис
- Площадь общая
464.10 м²
- Этаж / этажность
1 / 3
- Раздельных помещений
1 - 14
- Материал стен
Блочный
- Отопление
Есть
- Электроснабжение
Есть
- Естественное освещение
Есть
- Вода
Есть
- Санузел
Есть
- Принадлежность объекта
Частная
- Номер договора
697/24 от 28.12.2025
Примечание
Местоположение
- Область
- Населенный пункт
- Улица
- Номер дома
88
- Район города
- Микрорайон
- Координаты
53.9391, 27.576
