Купить офис, г. Минск, ул. Притыцкого, 156
4 302 452 р.
- г. Минскул. Притыцкого, 156
- Каменная горка
- На карте
Тип
Площадь
Этаж
Описание
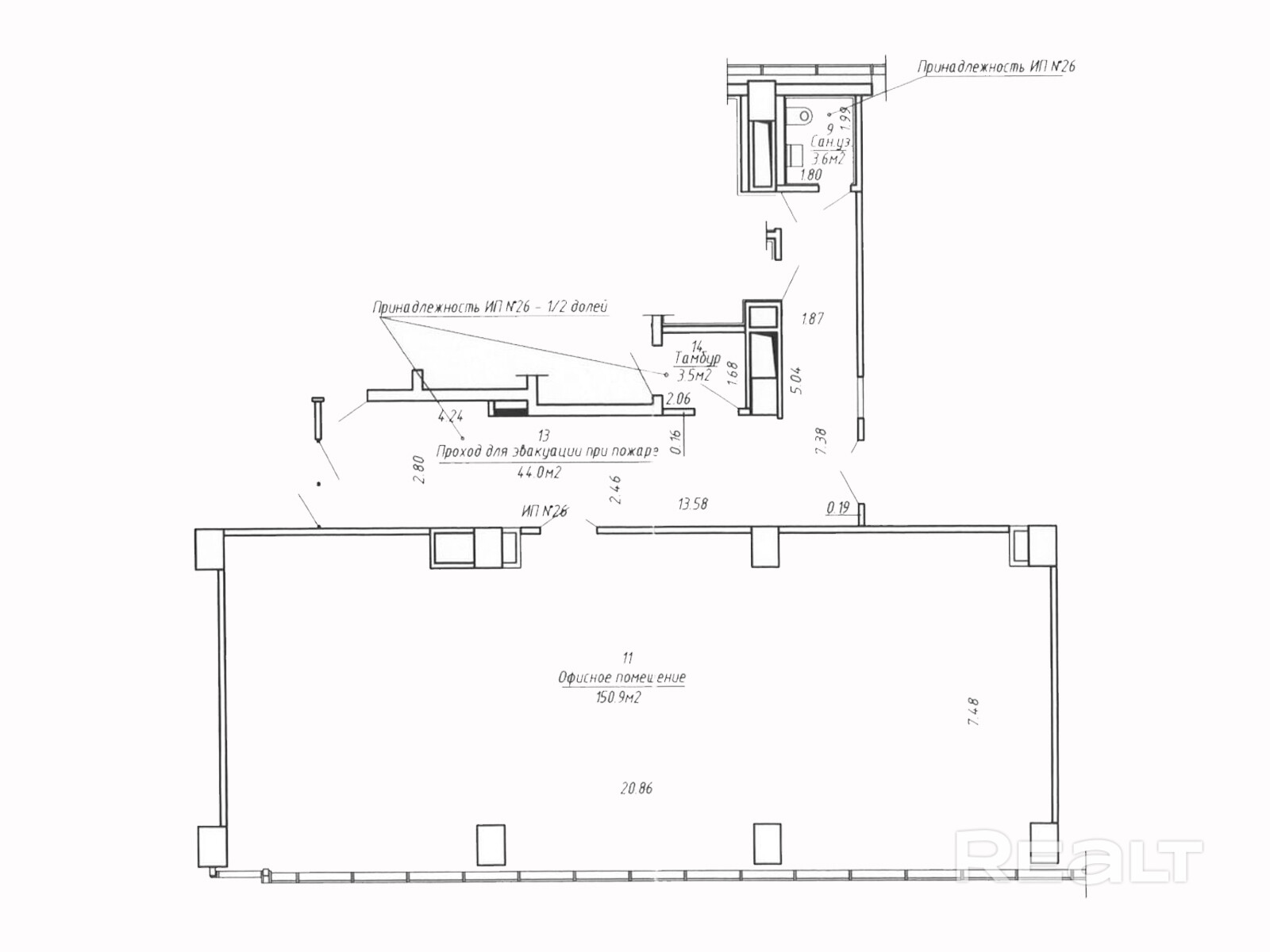
Продажа Офисного помещения в Минске по адресу: ул. Притыцкого, д. 156, БЦ «GREENCITY»
Тип объекта: Административно- офисное помещение на семнадцатом этаже БЦ «GREENCITY» общей площадью: 733,3 м2
Продается офисное помещение с действующими арендаторами, расположенное на семнадцатом этаже БЦ «GREENCITY» по адресу: ул. Притыцкого, дом 156.
Отделка офиса:
- напольное покрытие: ковролин;
- отделка стен: окрашены;
- потолок в стиле "Армстронг".
Инженерные системы и коммуникации:
- приточно-вытяжная вентиляция;
- разведены электрические и слаботочные сети;
- центральное водоснабжение и отопление;
- пожарная сигнализация;
- установлены приборы учета;
- кондиционеры.
Инфраструктура и удобства:
- Помещение находится в месте, с высоким пешеходным и автомобильным трафиком.
- Рядом расположена остановка общественного транспорта и станция метро «Каменная Горка».
- Удобные подъездные пути и парковочные места в непосредственной близости от объекта (подземный паркинг+ наземный)
- Рядом расположены пункты общественного питания, торговый центр «GREENCITY», отделения банков и прочие услуги.
Инвестиционная привлекательность:
- Объект с долгосрочными арендаторами, что обеспечивает стабильный доход, для будущего владельца.
- Идеальный вариант для инвесторов, желающих получать доход с первого дня после покупки
- Удобная локация с активным трафиком.
Для получения дополнительной информации и записи на просмотр — свяжитесь с нами по телефону или оставьте заявку на сайте.
Покупатель не оплачивает услуги риэлтерской организации.
Result Estate — ваш надёжный партнёр на рынке недвижимости.
20 лет опыта наших агентов по недвижимости — это ваш ключ к идеальной сделке: глубокое знание рынка, эксклюзивные предложения, юридическая безопасность и индивидуальный подход. Мы экономим ваше время, деньги и нервы, помогая купить, продать недвижимость быстро, выгодно и с уверенностью в результате!
Все актуальные предложения в одном месте — смотрите на нашем сайте.
Опишите свои пожелания — и мы оперативно подберем для вас лучшие варианты!
ООО «Результативная недвижимость», лицензия выдана Минюстом 26.09.2023 № 02240470, УНП 193703497
Связываясь с нами по данному объекту, Вы даете свое согласие на сбор и обработку персональных данных автоматически.
Параметры объекта
- Тип объекта
Офис
- Площадь общая
733.30 м²
- Этаж / этажность
17 / 21
- Раздельных помещений
4
- Ремонт
Хороший
- Отопление
Есть
- Электроснабжение
Есть
- Естественное освещение
Есть
- Вода
Есть
- Санузел
Есть
- Парковка
Есть
- Принадлежность объекта
Частная
- НДС
НДС не включен
- Расположение
В торговом центре
- Номер договора
55/3 от 22.06.2025
Результативная недвижимость
Контактное лицо
Примечание
Местоположение
- Область
- Населенный пункт
- Улица
- Номер дома
156
- Район города
- Микрорайон
- Координаты
53.9081, 27.4302
