Купить офис, г. Минск, ул. Платонова, 1/Б
3 851 р./м²
- г. Минскул. Платонова, 1/Б
- Площадь Победы
- На карте
Тип
Площадь
Этаж
Описание
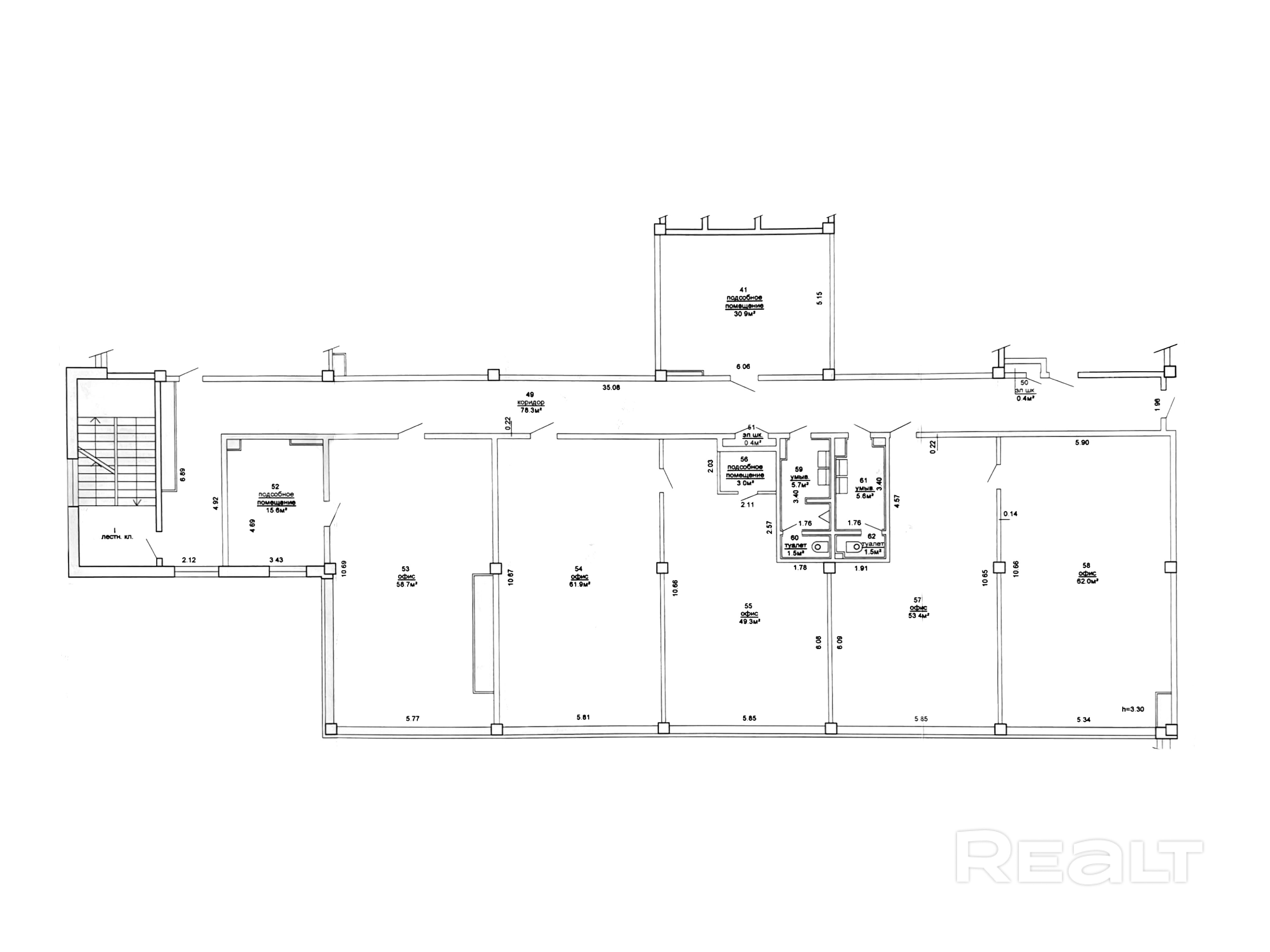
Изолированный административный блок площадью 428.2 кв.м.
Кабинетная планировка (все комнаты с естественным освещением), подсобное помещение, серверная, санузел.
Помещения с отделкой:
• Пол – керамическая плитка, ковролин;
• Стены – обои под покраску;
• Потолок типа Армстронг. Коммуникации и инженерия:
• Принудительная приточно-вытяжная вентиляция;
• Центральное отопление;
• Пожарно-охранная сигнализация;
• Видеонаблюдение;
• Кондиционирование;
• Оптоволокно (2 провайдера: «Белтелеком», «А1»);
• Телефонные линии.
Доступ в офис возможен 24/7. Рядом точки общественного питания. Ст.м. "Площадь Победы" в 15 минутах ходьбы, рядом остановки общественного транспорта.
Result Estate — ваш надёжный партнёр на рынке недвижимости.
20 лет опыта наших агентов по недвижимости — это ваш ключ к идеальной сделке: глубокое знание рынка, эксклюзивные предложения, юридическая безопасность и индивидуальный подход. Мы экономим ваше время, деньги и нервы, помогая купить, продать недвижимость быстро, выгодно и с уверенностью в результате!
Все актуальные предложения в одном месте — смотрите на нашем сайте.
Опишите свои пожелания — и мы оперативно подберем для вас лучшие варианты!
ООО «Результативная недвижимость», лицензия выдана Минюстом 26.09.2023 № 02240470, УНП 193703497
Связываясь с нами по данному объекту, Вы даете свое согласие на сбор и обработку персональных данных автоматически.
Параметры объекта
- Тип объекта
Офис
- Площадь общая
428.20 м²
- Этаж / этажность
2 / 7
- Раздельных помещений
1
- Материал стен
Монолитный
- Ремонт
Хороший
- Отопление
Есть
- Электроснабжение
Есть
- Естественное освещение
Есть
- Вода
Есть
- Санузел
Есть
- Парковка
Есть
- Принадлежность объекта
Частная
- НДС
НДС включен
- Номер договора
244/1 от 27.10.2025
Результативная недвижимость
Контактное лицо
Примечание
Местоположение
- Область
- Населенный пункт
- Улица
- Номер дома
1/Б
- Район города
- Микрорайон
- Координаты
53.9045, 27.5888
