Продажа офиса недалеко от метро с дизайнерским ремонтом и мебелью
455 400 р.
4 228 р.≈ 1 532 $ за м²
Тип
Площадь
Этаж
Описание
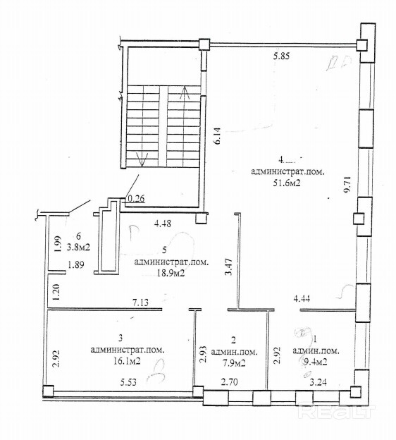
Продается офис по хорошей стоимости 165.000 дол. с НДС в ТЦ Некрасовский, по адресу Максима Богдановича, 118, расположенный на 3 этаже.
Офис полностью оборудован мебелью с зоной ресепшена, оборудован кухней, переговорной, кабинетом для директора/бухгалтера и один большой кабинет.
Во всех кабинетах установлены кондиционеры.
Парковка возле здания, а также подземный паркинг, который можно дополнительно недорого арендовать.
В ближайшей перспективе ликвидность офиса возрастет благодаря постройки ст.м. Богдановича/ Парк Дружбы народов, которая откроется в 500 метрах от ТЦ Некрасовский.
Покупатель не оплачивает услуги агентства!
Параметры объекта
- Тип объекта
Офис
- Площадь общая
107.70 м²
- Этаж / этажность
3 / 3
- Год постройки
2007
- Раздельных помещений
5
- Высота потолков
2.7 м
- Ремонт
Хороший
- Отопление
Есть
- Электроснабжение
Есть
- Естественное освещение
Есть
- Вода
Есть
- Оборудование
Есть
- Количество телефонов
1 телефон
- Парковка
Есть
- Принадлежность объекта
Частная
- НДС
НДС включен
- Расположение
В торговом центре
- Юридический адрес
Да
- Номер договора
468/1 от 08.04.2026
Оснащение
Кондиционер
Отдел коммерческой недвижимости
Контактное лицо
Примечание
Местоположение
- Область
- Населенный пункт
- Улица
- Номер дома
118
- Район города
- Микрорайон
- Координаты
53.9356, 27.5838
