Купить офис, г. Минск, ул. Левкова, 20
3 397 р./м²
- г. Минскул. Левкова, 20
- Ковальская Слобода
- На карте
Тип
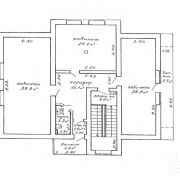
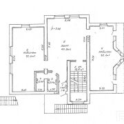
Площадь
Описание
Во всех зданиях преобладает кабинетный формат планировок. Есть возможность модернизации планировок с учетом пожеланий покупателя.
Имеются две лоджии, оборудованная кухня, душевая кабина, большое количество переговорных комнат, шесть сан. узлов. Территория комплекса огорожена
забором и зелеными насаждениями.
Общая площадь:
От 394 кв.м. до 1 383,9 кв.м.
- Здание Левкова 20 - 493,4 кв.м.
- Здание Левкова 24 - 405,5 кв.м.
- Здание Левкова 26 - 394 кв.м.
- Гараж Левкова 20а - 91 кв.м.
Отделка:
- напольное покрытие; плитка в коридорах ; в офисных помещениях пол ламинат и гомогенное покрытие
- стены штукатурка под покраску.
Инженерные системы и коммуникации:
- кондиционирование Mitsubishi-heavy (Япония)
- система видеонаблюдения (круглосуточно)
- телефонная и телевизионная сеть
- оптико-волоконные коммуникации
- автономное независимое газовое отопление здания.
Парковка:
На территории комплекса находится 30 машиномест.
Транспортное сообщение:
Здание имеет хорошие подъездные пути по улице Аэродромной. На общественном транспорте к объекту можно доехать на любом наземном транспорте, представлен разнообразный выбор маршрутов.
Станция метро «Институт Культуры» и «Ковальская Слобода» находится в шаговой доступности, что дает возможность сотрудникам без личного авто легко добираться до работы.
Инфраструктура:
Широко развита, включает в себя кафе, столовую, банки, магазины, аптеки.
Result Estate — ваш надёжный партнёр на рынке недвижимости.
20 лет опыта наших агентов по недвижимости — это ваш ключ к идеальной сделке: глубокое знание рынка, эксклюзивные предложения, юридическая безопасность и индивидуальный подход. Мы экономим ваше время, деньги и нервы, помогая купить, продать недвижимость быстро, выгодно и с уверенностью в результате!
Все актуальные предложения в одном месте — смотрите на нашем сайте.
Опишите свои пожелания — и мы оперативно подберем для вас лучшие варианты!
ООО «Результативная недвижимость», лицензия выдана Минюстом 26.09.2023 № 02240470, УНП 193703497
Связываясь с нами по данному объекту, Вы даете свое согласие на сбор и обработку персональных данных автоматически.
Параметры объекта
- Тип объекта
Офис
- Площадь общая
340 - 1383 м²
- Материал стен
Блочный
- Ремонт
Хороший
- Отопление
Есть
- Электроснабжение
Есть
- Естественное освещение
Есть
- Вода
Есть
- Оборудование
Есть
- Парковка
Есть
- НДС
НДС включен
- Номер договора
20/1 от 30.10.2023
Оснащение
Видеонаблюдение
Степан Аваков
Агент по недвижимости
Примечание
Местоположение
- Область
- Населенный пункт
- Улица
- Номер дома
20
- Район города
- Микрорайон
- Координаты
53.8795, 27.5555
