Купить офис, г. Минск, ул. Смоленская, 25
3 683 р./м²
- г. Минскул. Смоленская, 25
- Пролетарская
- На карте
Тип
Площадь
Описание
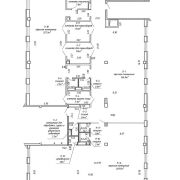
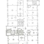
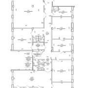
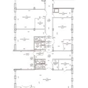
Продажа изолированных этажей общей площадью от 572,6 до 3466,2 кв.м.
Информация по этажам:
- 4-ый этаж - 577 кв.м
- 5-ый этаж - 576 кв.м
- 6-ой этаж - 587,3 кв.м.,
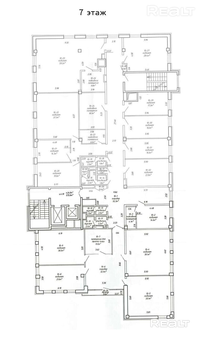
- 7-ой этаж - 575,8 кв.м
- 8-ой этаж -572,6 кв.м
- 9-ый этаж - 577,5 кв.м (можно разделить на 2 части).
Все помещения с естественным освещением. Наличие подсобных помещений, серверная, собственный коридор и предлифтовой холл для возможной организации ресепшена, 2 блока санузлов, комната приема пищи с подводом воды.
Собственная эксплуатирующая организация, все вопросы по обслуживанию помещения и здания решаются оперативно, круглосуточный доступ в здание, служба администратора на 1-ом этаже.
Инженерные системы и коммуникации:
- принудительная приточно-вытяжная вентиляция;
- системы кондиционирования воздуха
- центральное отопление;
- пожарно-охранная сигнализация;
- видеонаблюдение;
- компьютерная сеть;
- оптоволокно;
- телефонные линии;
- карт-доступ в блок;
- бесшумные лифты KONE.
Парковка:
Есть возможность приобретения машиномест на подземном паркинге, а также напротив здания находится большая неохраняемая площадка для парковки автомобилей.
Инфраструктура:
Кофе-поинт на первом этаже здания, рядом точки общественного питания.
Транспортное сообщение:
Шаговая доступность от ст. м. "Пролетарская", рядом остановки общественного транспорта.
Все помещения сданы в долгосрочную аренду
Result Estate — ваш надёжный партнёр на рынке недвижимости.
20 лет опыта наших агентов по недвижимости — это ваш ключ к идеальной сделке: глубокое знание рынка, эксклюзивные предложения, юридическая безопасность и индивидуальный подход. Мы экономим ваше время, деньги и нервы, помогая купить, продать недвижимость быстро, выгодно и с уверенностью в результате!
Все актуальные предложения в одном месте — смотрите на нашем сайте.
Опишите свои пожелания — и мы оперативно подберем для вас лучшие варианты!
ООО «Результативная недвижимость», лицензия выдана Минюстом 26.09.2023 № 02240470, УНП 193703497
Связываясь с нами по данному объекту, Вы даете свое согласие на сбор и обработку персональных данных автоматически.
Параметры объекта
- Тип объекта
Офис
- Площадь общая
572.60 - 3466.20 м²
- Ремонт
Хороший
- Отопление
Есть
- Электроснабжение
Есть
- Естественное освещение
Есть
- Вода
Есть
- Санузел
Есть
- Оборудование
Есть
- Парковка
Есть
- Принадлежность объекта
Частная
- НДС
НДС включен
- Расположение
В бизнес центре
- Номер договора
14/1 от 30.10.2023
Оснащение
Сигнализация
Видеонаблюдение
Оживленное место
Мебель
Степан Аваков
Агент по недвижимости
Примечание
Местоположение
- Область
- Населенный пункт
- Улица
- Номер дома
25
- Район города
- Микрорайон
- Координаты
53.893, 27.5875
