Скачать приложение Realt
Скачать

Купить офис, г. Минск, ул. Прушинских

84 984 - 5 900 297 р.

30 000 - 2 082 850 $

3 116 - 3 399 р. 1 100 - 1 200 $ за м²

Продажа
Следить за ценой
Офис

Тип

25 - 1893.50 м²

Площадь

2 из 6

Этаж

3 часа назадID 4098264
pdf
Обзор по коммерческой недвижимости
Сделки, цены и ставки аренды за 2025 год

Описание

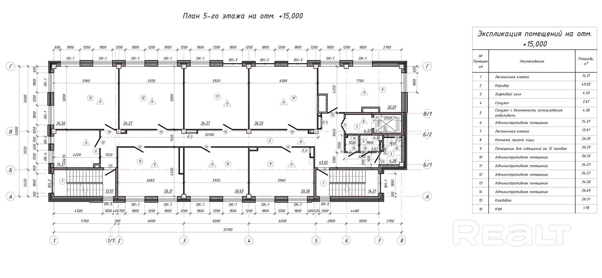
Долевое строительство административных помещений в строящемся бизнес-центре в г. Минске.

Объект расположен в южной части города в микрорайоне Лошица на улице Прушинских.

Продажа офисных помещений от 25 кв.м., возможна покупка изолированного этажа площадью около 380 кв.м..

Помещения передаются с отделкой. Бизнес-центр состоит из 6 этажей и эксплуатируемого подвала, оборудован лифтом с 1-го по 6-ой этаж, а также наружной подъемной платформой закрытого типа с перового этажа в подвал. Здание с монолитным железобетонным каркасом с заполнением блоками ячеистого бетона, утепление фасада минераловатными плитами по системе вентилируемого фасада с облицовкой керамогранитом и линеарными панелями. Перегородки выполнены из кирпича и гипсовых пазогребневых плит. Кровля плоская утепленная неэксплуатируемая.

На первом этаже расположены торговые помещения и помещения для размещения сферы услуг, на втором-шестом этажах – офисы.

В подвале здания запроектирован многофункциональный зал с возможностью размещения спортивного объекта.

Предусмотрено строительство парковки на 62 машиномест + 2 зарядные станции для электромобилей.

В пешей доступности расположена диспетчерская станция Лошица-2, в непосредственной близости – выезд на Игуменский тракт и Минскую кольцевую автодорогу.

Result Estate — ваш надёжный партнёр на рынке недвижимости.

20 лет опыта наших агентов по недвижимости — это ваш ключ к идеальной сделке: глубокое знание рынка, эксклюзивные предложения, юридическая безопасность и индивидуальный подход. Мы экономим ваше время, деньги и нервы, помогая купить, продать недвижимость быстро, выгодно и с уверенностью в результате!

ООО «Результативная недвижимость», лицензия выдана Минюстом 26.09.2023 № 02240470, УНП 193703497

Связываясь с нами по данному объекту, Вы даете свое согласие на сбор и обработку персональных данных автоматически.

Параметры объекта

  • Тип объекта

    Офис

  • Площадь общая

    25 - 1893.50 м²

  • Этаж / этажность

    2 / 6

  • Принадлежность объекта

    Частная

  • НДС

    НДС включен

  • Расположение

    В бизнес центре

  • Номер договора

    149/1 от 23.06.2024

Примечание

Долевое строительство административных помещений в строящемся бизнес-центре в г. Минске.

Местоположение